shrek1984
发表于2008-5-12
3603人浏览
4人跟帖 等级:
来自:建筑户型图
近期设计和收集的户型,有一梯两户、三户四户的,以及点式和几个跃层,希望能给大家作为参考,图纸中只有平面图!
最新回复:小邓1993 2014-9-9 
xiezhixin512
发表于2011-7-15
4741人浏览
2人跟帖 等级:
来自:建筑户型图
户型:二居室 总开间x进深:13x14.6米 图纸包含:户型平面图、总平面布置图
最新回复:qs8shjyue 2014-8-26 
cxizx
发表于2011-2-17
4654人浏览
2人跟帖 等级:
来自:建筑户型图
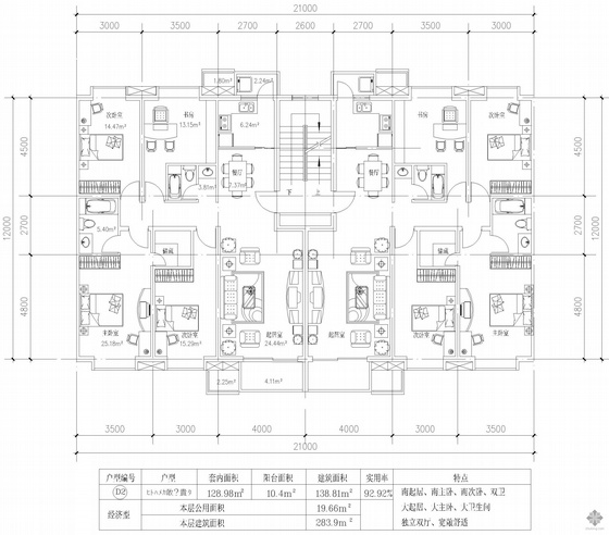
总开间x进深:22x10.5米 户型:三室二厅二卫 图纸张数:1张CAD
最新回复:lyylyy0303 2014-8-24 
q08004809
发表于2012-6-4
6809人浏览
3人跟帖 等级:
来自:建筑户型图
总开间x进深:15x11米 资料包含:户型平面图 资料张数:5张CAD
最新回复:shejisanyuan 2014-8-21 
incubusy
发表于2011-7-12
15445人浏览
3人跟帖 等级:
来自:建筑户型图
总建筑面积:688.8平方米 总开间x进深:18.6 x13.5米 图纸包含:各层平面图 图纸张数:1张CAD
最新回复:shejisanyuan 2014-8-21 
lirenzaijing
发表于2012-3-9
5669人浏览
2人跟帖 等级:
来自:建筑户型图
总开间x进深:25x17.7米 户型:两居室、三居室 资料包含:户型平面图 资料张数:1张CAD
最新回复:cty415 2014-8-18 
华非南
发表于2012-5-9
11993人浏览
2人跟帖 等级:
来自:建筑户型图
总开间x进深:20.2x11.1米 总建筑面积:281.54平方米 户型:五房三厅四卫 资料包含:各层平面图、屋顶平面图 资料张数:1张CAD
最新回复:会飞的小小鱼 2014-8-8 
shenlong3751
发表于2012-5-7
8069人浏览
3人跟帖 等级:
来自:建筑户型图
总建筑面积:250.52平方米 开间x进深:9.9x14.4米 户型:五房三厅三卫(带工人房) 资料包含:各层平面图 资料张数:1张CAD
最新回复:xyfxzcyx2 2014-8-7 
incubusy
发表于2011-9-2
16699人浏览
2人跟帖 等级:
来自:建筑户型图
总开间x进深:17.64x15.84米 总建筑面积:415.26平方米 资料包含:各层平面图 资料张数:1张CAD
最新回复:licuo 2014-8-1 
cxizx
发表于2011-2-17
6222人浏览
2人跟帖 等级:
来自:建筑户型图
总开间x进深:25x12米 户型:四室二厅二卫 图纸张数:1张CAD
最新回复:slamdunklb 2014-7-24 
阿德里
发表于2012-11-21
10898人浏览
3人跟帖 等级:
来自:建筑户型图
带入户花园 总开间x进深:32.4x17.1米 户型:二居室(91、94平方米) 资料包含:户型平面图 资料张数:1张JPG 图片大小:1000x600
最新回复:asd115678 2014-7-17 