艺术设计
工程技术
机电设备
项目与管理
BIM学院
关注
发资料
了解更多
还可以输入 40 字
加入小组后才可以发帖哦,现在就加入?
检索到2141条内容
0
板式多层一梯二户有跃层户型图(109/109)
sxj20289558 发表于2009-2-25 1445人浏览 1人跟帖 等级: 来自:建筑户型图
板式多层一梯二户有跃层户型图(120/120)
sxj20289558 发表于2009-2-25 3746人浏览 1人跟帖 等级: 来自:建筑户型图
板式多层一梯二户四房二厅二卫户型图(148/148)
sxj20289558 发表于2009-2-25 2397人浏览 1人跟帖 等级: 来自:建筑户型图
板式多层一梯二户四房二厅二卫户型图(136/136)
sxj20289558 发表于2009-2-25 1882人浏览 1人跟帖 等级: 来自:建筑户型图
板式多层一梯二户四房二厅二卫户型图(137/137)
sxj20289558 发表于2009-2-25 1635人浏览 1人跟帖 等级: 来自:建筑户型图
板式多层一梯二户四房二厅二卫户型图(140/140)
sxj20289558 发表于2009-2-25 3540人浏览 1人跟帖 等级: 来自:建筑户型图
sxj20289558 发表于2009-2-25 1608人浏览 1人跟帖 等级: 来自:建筑户型图
板式多层一梯二户户型组合平面图(102/102/92/99.5)
秋雨夜 发表于2009-2-25 1686人浏览 1人跟帖 等级: 来自:建筑户型图
板式多层一梯二户八户户型组合平面图
秋雨夜 发表于2009-2-25 5265人浏览 2人跟帖 等级: 来自:建筑户型图
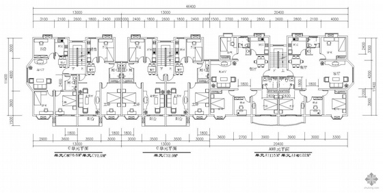
板式多层一梯二户六户户型组合平面图(112/102/102/102/...
秋雨夜 发表于2009-2-25 5827人浏览 2人跟帖 等级: 来自:建筑户型图
板式多层一梯二户八户户型组合平面图(85/77/77/77/77/7...
秋雨夜 发表于2009-2-25 3772人浏览 4人跟帖 等级: 来自:建筑户型图
板式多层一梯二户八户户型组合平面图(77/73/73/73/73/7...
秋雨夜 发表于2009-2-25 3491人浏览 2人跟帖 等级: 来自:建筑户型图
板式多层一梯二户四户户型组合平面图(88/112/102/112)
秋雨夜 发表于2009-2-25 6329人浏览 3人跟帖 等级: 来自:建筑户型图
板式多层一梯二户十户户型组合平面图
秋雨夜 发表于2009-2-25 3307人浏览 1人跟帖 等级: 来自:建筑户型图
板式多层一梯二户六户户型组合平面图(77/73/73/73/115/...
秋雨夜 发表于2009-2-25 6028人浏览 2人跟帖 等级: 来自:建筑户型图
板式多层单户二室二厅一卫户型图(81)
秋雨夜 发表于2009-2-25 5799人浏览 1人跟帖 等级: 来自:建筑户型图
板式多层单户二室二厅一卫户型图(88)
秋雨夜 发表于2009-2-25 3539人浏览 1人跟帖 等级: 来自:建筑户型图
板式多层一梯二户有跃层户型图(111/72)
sxj20289558 发表于2009-2-25 1546人浏览 1人跟帖 等级: 来自:建筑户型图
板式多层单户三室二厅一卫户型图(126)
秋雨夜 发表于2009-2-25 3643人浏览 1人跟帖 等级: 来自:建筑户型图
板式多层单户四室二厅二卫户型图(143)
秋雨夜 发表于2009-2-25 5692人浏览 1人跟帖 等级: 来自:建筑户型图
独栋别墅
联排别墅
双拼别墅
叠拼别墅
多层住宅
高层住宅
1梯2户
1梯3户
1梯4户
1梯5至8户
1梯9户及以上
一室户
二室户
三室户
四室户
复式及跃层
板式住宅
塔式住宅
申请加入管理团队
组长
向日葵爱阳光
管理员
小夭90
上善至简
超人不会飞521
AlwaysBlack
兜里全是糖
选择想要与"建筑户型图"交换链接的小组
忘记选择小组啦,小伙伴们很困惑,还是选一个再交换吧~
: 400-900-8066
: QQ即时交流
如何上传
上传奖励
VIP特权
VIP福利
如何升级