本小组汇集办建筑节点详图资料。建筑师朋友们可以自由分享与下载室外工程、墙体构造、变形缝、屋面建筑构造、楼地面建筑构造、楼电梯建筑构造、建筑幕墙...
- 373438成员
- 3995主题
- 5344回复
- 0热度

发表于2013-7-18
2502人浏览
2人跟帖 等级:
来自:建筑节点详图
某大厦地下车库节点详图
最新回复: 2014-9-29 
发表于2003-12-18
3313人浏览
2人跟帖 等级:
来自:建筑节点详图
古建节点图块—檐
最新回复: 2014-9-29 
发表于2007-8-3
4240人浏览
3人跟帖 等级:
来自:建筑节点详图
阳台落水管构造
最新回复: 2014-9-26 
发表于2014-9-24
4032人浏览
1人跟帖 等级:
来自:建筑节点详图
上海欧式别墅墙体做法详图。
最新回复: 2014-9-24 
发表于2014-9-24
4698人浏览
1人跟帖 等级:
来自:建筑节点详图
上海某欧式别墅飘窗做法详图。
最新回复: 2014-9-24 
发表于2006-5-22
2659人浏览
2人跟帖 等级:
来自:建筑节点详图
散水明沟04
最新回复: 2014-9-18 
发表于2007-9-10
8768人浏览
2人跟帖 等级:
来自:建筑节点详图
明沟做法详图(二)
最新回复: 2014-9-18 
发表于2014-4-11
2557人浏览
2人跟帖 等级:
来自:建筑节点详图
江苏某超高层酒店建筑楼面变裂缝详图
最新回复: 2014-9-15 
发表于2005-6-30
7258人浏览
2人跟帖 等级:
来自:建筑节点详图
此节点供大家参考
最新回复: 2014-8-31 
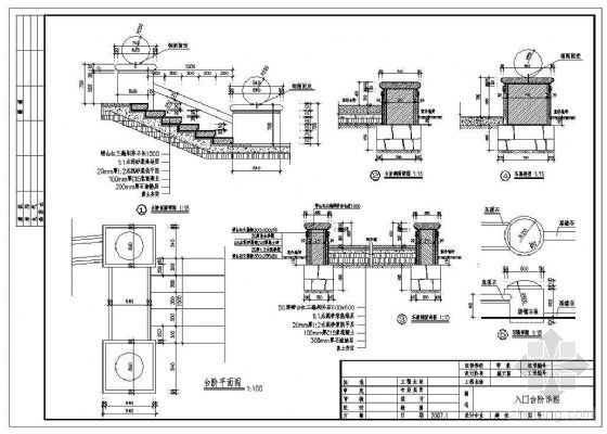
发表于2007-9-19
6368人浏览
2人跟帖 等级:
来自:建筑节点详图
台阶、坡道、护栏,大样节点详图,用于宾馆等需要车开到入口处的建筑。
最新回复: 2014-8-27 
发表于2007-11-21
3858人浏览
2人跟帖 等级:
来自:建筑节点详图
钢结构屋面节点-女儿墙4
最新回复: 2014-8-25 
发表于2004-5-11
7644人浏览
1人跟帖 等级:
来自:建筑节点详图
顶层檐口、外墙、雨棚大样详图
最新回复: 2014-8-25 
发表于2010-1-8
12062人浏览
2人跟帖 等级:
来自:建筑节点详图
【图集】某门式刚架轻型单层钢结构厂房节点套图图集 工程为单层钢结构厂房,跨度为 10+16+24+16 m,柱距为 9@8m+7m ,屋面采用 压型钢板+保温棉 ,墙面采用 压型钢板 ,基础采用 砼 。 1. 按重要性分类,本工程安...
最新回复: 2014-8-20 
发表于2006-12-31
2730人浏览
2人跟帖 等级:
来自:建筑节点详图
雨蓬节点
最新回复: 2014-8-20 
发表于2009-9-9
4984人浏览
3人跟帖 等级:
来自:建筑节点详图
图纸包含: 水池防水设计说明 地上食用水池防水构造图 全埋式食用水池双面防水构造图 食用水池直埋式、套管式节点防水
最新回复: 2014-8-18 
发表于2005-6-1
4262人浏览
2人跟帖 等级:
来自:建筑节点详图
图纸包含了 较普遍的施工大样图 墙体 屋面 楼地面等共约200左右个大样!
最新回复: 2014-8-7 
发表于2010-8-13
2779人浏览
2人跟帖 等级:
来自:建筑节点详图
某设计院常用浴厕局部通用图集,包括图例、节点构造等
最新回复: 2014-8-7 
发表于2008-10-15
3552人浏览
2人跟帖 等级:
来自:建筑节点详图
[威海]某工程点式玻璃幕墙和点式玻璃锥体建筑施工图 点式玻璃幕墙和点式玻璃锥体的平面.立面.剖面和节点施工成套图纸。
最新回复: 2014-8-6 
发表于2009-11-27
14437人浏览
4人跟帖 等级:
来自:建筑节点详图
华北标通用88J1-1图集工程做法——1个excel表 包含:地面、楼面、踢脚线、台阶、散水、外墙面、内墙面、顶棚、平屋面、坡屋面的找平层、防水层、保护层、面层做法。
最新回复: 2014-8-1 
发表于2005-9-13
5027人浏览
1人跟帖 等级:
来自:建筑节点详图
有参考价值!
最新回复: 2014-8-1 