建筑节点详图_建筑设计图片
本小组汇集办建筑节点详图资料。建筑师朋友们可以自由分享与下载室外工程、墙体构造、变形缝、屋面建筑构造、楼地面建筑构造、楼电梯建筑构造、建筑幕墙...
  • 373438成员
  • 3995主题
  • 5344回复
  • 0热度
  • 0周热度
  • 0月热度
  • 0总热度

了解更多

检索到3995条内容

0

eggs    发表于2007-9-10    1917人浏览  1人跟帖   等级:   来自:建筑节点详图  

暗扣聚氨酯墙板墙角包角详图

0

redpanda    发表于2007-9-10    9904人浏览  4人跟帖   等级:   来自:建筑节点详图  

屋脊做法详图

0

redpanda    发表于2007-9-10    14888人浏览  2人跟帖   等级:   来自:建筑节点详图  

太阳能板基座做法详图

0

redpanda    发表于2007-9-10    1587人浏览  1人跟帖   等级:   来自:建筑节点详图  

屋面装饰小品做法详图

0

redpanda    发表于2007-9-10    1532人浏览  1人跟帖   等级:   来自:建筑节点详图  

入口平台做法详图

0

eggs    发表于2007-9-10    1299人浏览  1人跟帖   等级:   来自:建筑节点详图  

暗扣聚氨酯墙板与地面连接详图

0

eggs    发表于2007-9-10    1772人浏览  1人跟帖   等级:   来自:建筑节点详图  

聚氨酯墙板与砖墙连接详图

0

eggs    发表于2007-9-10    1604人浏览  1人跟帖   等级:   来自:建筑节点详图  

聚氨酯墙板纵向搭接详图

0

redpanda    发表于2007-9-10    5248人浏览  2人跟帖   等级:   来自:建筑节点详图  

平台踏步做法详图

0

eggs    发表于2007-9-10    1365人浏览  1人跟帖   等级:   来自:建筑节点详图  

暗扣聚氨酯墙板与砖墙连接详图

0

eggs    发表于2007-9-10    1535人浏览  1人跟帖   等级:   来自:建筑节点详图  

暗扣聚氨酯墙板纵向搭接详图

0

eggs    发表于2007-9-10    1610人浏览  1人跟帖   等级:   来自:建筑节点详图  

聚氨酯墙板窗侧泛水详图

0

eggs    发表于2007-9-10    5237人浏览  1人跟帖   等级:   来自:建筑节点详图  

聚氨酯墙板窗台、窗楣泛水详图

0

redpanda    发表于2007-9-10    11422人浏览  2人跟帖   等级:   来自:建筑节点详图  

坡屋面构造做法详图

0

eggs    发表于2007-9-10    2429人浏览  1人跟帖   等级:   来自:建筑节点详图  

聚氨酯墙板墙角包角详图

0

redpanda    发表于2007-9-10    5216人浏览  1人跟帖   等级:   来自:建筑节点详图  

采光井栏杆做法详图

0

redpanda    发表于2007-9-10    2058人浏览  1人跟帖   等级:   来自:建筑节点详图  

花坛侧壁做法详图

0

redpanda    发表于2007-9-10    11371人浏览  1人跟帖   等级:   来自:建筑节点详图  

露台天沟及侧向地漏做法详图

0

redpanda    发表于2007-9-10    8768人浏览  2人跟帖   等级:   来自:建筑节点详图  

明沟做法详图(二)

0

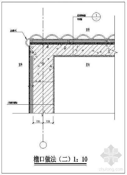
redpanda    发表于2007-9-10    5689人浏览  1人跟帖   等级:   来自:建筑节点详图  

檐口做法详图(二)