园林景观节点详图_园林景观图片
悄悄告诉你,来到这里,景观施工图一切都成了小意思,景观行业最全节点详图统统都在这里!
  • 150866成员
  • 14248主题
  • 19566回复
  • 0热度
  • 0周热度
  • 0月热度
  • 0总热度

了解更多

检索到14330条内容

0

downrain    发表于2007-1-25    1999人浏览  1人跟帖   等级:   来自:园林景观节点详图  

观景台详图包括平立剖及小品详图。

0

xinxing888    发表于2007-1-25    902人浏览  1人跟帖   等级:   来自:园林景观节点详图  

花架节点详图包括平立剖等。

0

bianyue    发表于2007-1-25    1998人浏览  1人跟帖   等级:   来自:园林景观节点详图  

造浪机房施工图包括平面、屋顶平面、剖面及节点。

0

xinxing888    发表于2007-1-25    2395人浏览  1人跟帖   等级:   来自:园林景观节点详图  

烧结砖铺装剖面详图

0

xinxing888    发表于2007-1-25    1432人浏览  1人跟帖   等级:   来自:园林景观节点详图  

杉木铺装剖面详图

0

xinxing888    发表于2007-1-25    7482人浏览  1人跟帖   等级:   来自:园林景观节点详图  

面包砖铺装剖面详图

0

pengyaoyao    发表于2007-1-24    1463人浏览  1人跟帖   等级:   来自:园林景观节点详图  

休闲花架详图包括平立剖计详细节点图。

0

downrain    发表于2007-1-24    2031人浏览  1人跟帖   等级:   来自:园林景观节点详图  

特色凉亭详图包括平立剖及大样图。

0

xinxing888    发表于2007-1-24    5145人浏览  2人跟帖   等级:   来自:园林景观节点详图  

架空层及停车库及地面景观剖面图

0

xinxing888    发表于2007-1-24    1758人浏览  1人跟帖   等级:   来自:园林景观节点详图  

卵石铺装剖面详图

0

xinxing888    发表于2007-1-24    2868人浏览  2人跟帖   等级:   来自:园林景观节点详图  

火烧板铺装剖面详图

0

xinxing888    发表于2007-1-24    1353人浏览  1人跟帖   等级:   来自:园林景观节点详图  

花岗岩剖面详图

0

xinxing888    发表于2007-1-24    3449人浏览  2人跟帖   等级:   来自:园林景观节点详图  

弹石铺装剖面详图

0

xinxing888    发表于2007-1-24    1603人浏览  1人跟帖   等级:   来自:园林景观节点详图  

标准行人步道铺地详图包括平面和剖面.

0

downrain    发表于2007-1-23    2200人浏览  1人跟帖   等级:   来自:园林景观节点详图  

入口景墙跌水详图包括平立剖及大样。

0

xinxing888    发表于2007-1-23    2066人浏览  1人跟帖   等级:   来自:园林景观节点详图  

风雨亭详图包括平立剖及详细节点图。

0

xinxing888    发表于2007-1-23    1681人浏览  1人跟帖   等级:   来自:园林景观节点详图  

大堂入口铺装详图包括铺装平面以及剖面做法图。

0

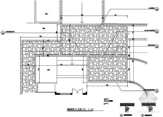
xinxing888    发表于2007-1-23    2619人浏览  1人跟帖   等级:   来自:园林景观节点详图  

水洗石铺装剖面详图

0

xinxing888    发表于2007-1-23    1576人浏览  1人跟帖   等级:   来自:园林景观节点详图  

台阶剖面详图

0

xinxing888    发表于2007-1-23    2352人浏览  1人跟帖   等级:   来自:园林景观节点详图  

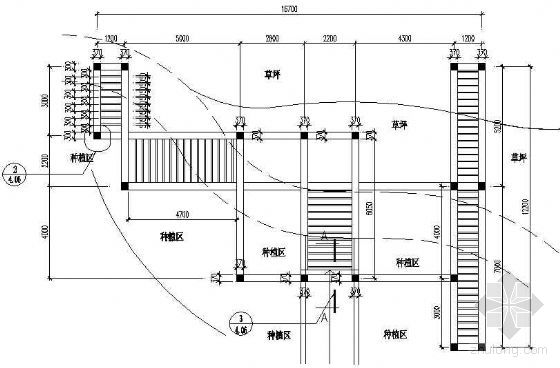
卵石小径详图包括平面和剖面。