jianrend
发表于2007-7-27
3714人浏览
1人跟帖 等级:
来自:住宅装修
某别墅内部装修全套施工图,包括一二层平面布置图,顶面布置图,阁楼立面图,别墅各方向立面图,卫生间,客厅立面图等共36张图纸
最新回复:melissa 2007-7-27 
ANNZO
发表于2007-7-20
3214人浏览
1人跟帖 等级:
来自:住宅装修
某海景花园别墅整套,包括各层平面体布置图,地面布置图,天花布置图,水电布置图,立面图大样图等共59张图纸
最新回复:melissa 2007-7-20 
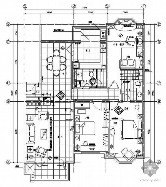
政客
发表于2007-7-19
10090人浏览
3人跟帖 等级:
来自:住宅装修
此图为某复式住宅全套施工图,包括一二层原建平面图,一二层平面布置图,一二层插座图,一二层天花布置图,一二层线路布置图,一二层地面布置图,主卧室AB里面图,二楼过道立面,二楼主卧立面,玄关立面,衣柜立面,书房立面,客...
最新回复:黄鼠狼11 2021-11-29 
12576931300
发表于2007-6-14
1463人浏览
1人跟帖 等级:
来自:住宅装修
该别墅为三层,包括各层的原始结构图,平面布置图,天花布置图,电路图,插座布置图,主要房间立面图和楼梯立面图共30张图
最新回复:空间形象 2007-6-14 