室子
发表于2011-8-18
1832人浏览
1人跟帖 等级:
来自:娱乐空间装修
(14张) 包括:平面图、地坪图、顶面图、天花图;包间立面图;节点(背景墙、天花)
最新回复:forever5 2011-8-18 
a04188
发表于2011-8-17
14326人浏览
17人跟帖 等级:
来自:娱乐空间装修
内容介绍: KTV装修工程,工程地点位于商业地段1层,框架结构,建筑面积为600㎡。装饰使用功能,内设接待区、多功能舞、10间VIP包房、等多功能的KTV娱乐所。本工程设计装饰风格新颖、用材高档豪华、区域布置合理、公用通道...
最新回复:S_xhScape 2015-5-6 
浙江强盗
发表于2011-6-16
4214人浏览
4人跟帖 等级:
来自:娱乐空间装修
(52张) 包括:图纸目录、设计说明、系统图、1层及夹层(平面图、顶面图、监控图、综合布线图、应急照明、消防图、动力图、照明图);电影元立面图;节点(收银台)附9张效果图。
最新回复:tony3849 2014-12-11 
116533039
发表于2011-5-27
3502人浏览
2人跟帖 等级:
来自:娱乐空间装修
(10张) 包括:平面图、天花图、地坪图、电影院及卫生间立面图、节点(天花、墙身)
最新回复:907960698 2014-10-9 
XJYJYS1000
发表于2011-5-5
2083人浏览
1人跟帖 等级:
来自:娱乐空间装修
(80张) 包括:1-6层平面图、地坪图、墙体定位图、天棚图、墙体顶位图、应急照明图、供电图、照明、下水管道图;立面图(收银台、大厅、27个包间)
最新回复:forever5 2011-5-5 
yingzier113
发表于2011-4-28
2083人浏览
1人跟帖 等级:
来自:娱乐空间装修
(8张) 包括:平面图、定位尺寸图、地坪图、顶面图、影厅及进场立面图
最新回复:forever5 2011-4-28 
yingzier113
发表于2011-4-28
2548人浏览
1人跟帖 等级:
来自:娱乐空间装修
(8张) 包括:平面图、定位尺寸图、地坪图、顶面图、影厅及进场立面图
最新回复:forever5 2011-4-28 
yingzier113
发表于2011-4-28
4561人浏览
2人跟帖 等级:
来自:娱乐空间装修
(8张) 包括:平面图、定位尺寸图、地坪图、顶面图、影厅及进场立面图
最新回复:shmily0211 2014-8-17 
河流遇枯木
发表于2011-4-15
6707人浏览
9人跟帖 等级:
来自:娱乐空间装修
凯悦大酒店豪华KTV空间施工图(90张) 位于酒店内四~5层 包括:施工图说明、目录、空调平面、平面图、天花图、天花尺寸图、地拼图、尺寸图、索引图。众多个KTV包厢、公共走廊、大厅、演义吧节点(天花、吧台、...
最新回复:山风123 2012-2-20 
yt0
发表于2011-3-31
1545人浏览
1人跟帖 等级:
来自:娱乐空间装修
[温州]某豪华俱乐部VIP77号房装修图 包括:平面图、天花图、插座图、灯位图、尺寸图。各装饰立面图,
最新回复:nikou 2011-3-31 
yt0
发表于2011-3-31
1215人浏览
1人跟帖 等级:
来自:娱乐空间装修
[温州]某豪华俱乐部VIP13号房装修图 包括:平面图、天花图、插座图、灯位图、尺寸图。各装饰立面图,
最新回复:nikou 2011-3-31 
匿名
发表于2011-3-31
1007人浏览
1人跟帖 等级:
来自:娱乐空间装修
[温州]某豪华俱乐部VIP6号房装修图 包括:平面图、天花图、插座图、灯位图、尺寸图。各装饰立面图,
最新回复:nikou 2011-3-31 
suorp2000
发表于2011-3-30
1012人浏览
1人跟帖 等级:
来自:娱乐空间装修
(32张) 包括:总平面图、总顶面图;11个包厢(平面图、顶面图、立面图)
最新回复:forever5 2011-3-30 
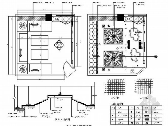
solo梭
发表于2011-3-25
2742人浏览
1人跟帖 等级:
来自:娱乐空间装修
(8张) 包括:平面图、顶面图、地坪图、包房立面图及天花剖面详图。
最新回复:forever5 2011-3-25 
suorp2000
发表于2011-3-25
1292人浏览
1人跟帖 等级:
来自:娱乐空间装修
(8张) 包括:平面图、顶面图、地坪图、包房立面图及天花剖面详图。
最新回复:forever5 2011-3-25 
阿米拉
发表于2011-3-25
1146人浏览
1人跟帖 等级:
来自:娱乐空间装修
(12张) 包括:平面图、顶面图、地坪图、包房立面图及接待台详图。
最新回复:forever5 2011-3-25 