匿名
发表于2020-3-23
1284人浏览
1人跟帖
等级:
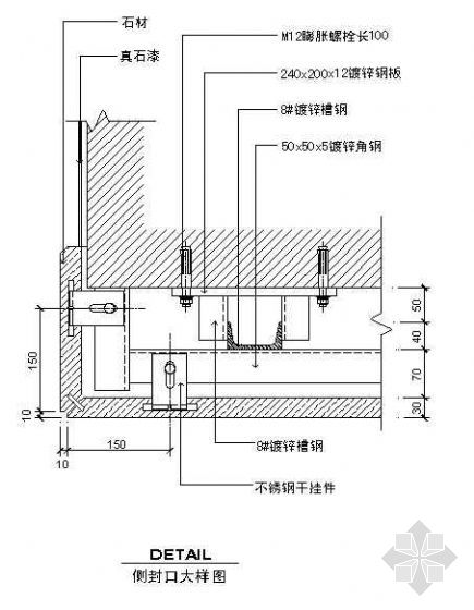
来自:室内节点详图 