xuexuedd
发表于2012-1-4
1186人浏览
1人跟帖
等级:
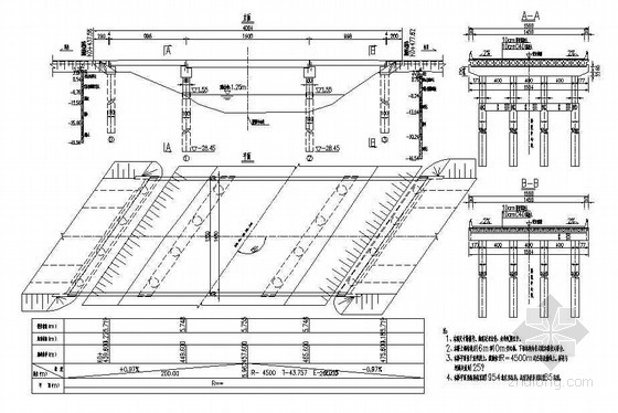
来自:路桥节点详图 
xuexuedd
发表于2011-12-31
1230人浏览
1人跟帖
等级:
来自:路桥节点详图 
xuexuedd
发表于2011-12-31
601人浏览
1人跟帖
等级:
来自:路桥节点详图 