路桥节点详图_路桥市政图片
节点详图,公路铁路、桥梁隧道、地铁轨交、市政工程等的分部分项工程节点详图设计资料,欢迎路桥及市政同行们下载和上传相关资料。
  • 137721成员
  • 5642主题
  • 7054回复
  • 0热度
  • 0周热度
  • 0月热度
  • 0总热度

了解更多

检索到5641条内容

0

minghanxi    发表于2012-11-12    3061人浏览  2人跟帖   等级:   来自:路桥节点详图  

桥梁栏杆大样图,中国风复古风格。

0

minghanxi    发表于2012-11-12    2616人浏览  1人跟帖   等级:   来自:路桥节点详图  

桥梁栏杆大样图,材料为大理石,中国风复古风格。   

0

minghanxi    发表于2012-11-8    4353人浏览  1人跟帖   等级:   来自:路桥节点详图  

桥梁不锈钢栏杆大样图(异型钢管)

0

minghanxi    发表于2012-11-8    10965人浏览  5人跟帖   等级:   来自:路桥节点详图  

桥梁人行道不锈钢栏杆大样图

0

minghanxi    发表于2012-11-8    3934人浏览  1人跟帖   等级:   来自:路桥节点详图  

桥梁不锈钢栏杆大样图(波浪型)

0

匿名    发表于2012-11-8    2017人浏览  1人跟帖   等级:   来自:路桥节点详图  

桥梁不锈钢栏杆大样图(V字型装饰)

0

minghanxi    发表于2012-11-8    3650人浏览  1人跟帖   等级:   来自:路桥节点详图  

桥梁栏杆大样图(椭圆不锈钢套管)

0

minghanxi    发表于2012-11-8    2697人浏览  1人跟帖   等级:   来自:路桥节点详图  

桥梁不锈钢栏杆大样图

0

minghanxi    发表于2012-11-6    2333人浏览  1人跟帖   等级:   来自:路桥节点详图  

桥梁方形钢筋混凝土栏杆大样图

0

minghanxi    发表于2012-11-6    3881人浏览  1人跟帖   等级:   来自:路桥节点详图  

桥梁钢筋混凝土栏杆节点大样图

0

minghanxi    发表于2012-11-6    2995人浏览  1人跟帖   等级:   来自:路桥节点详图  

桥梁钢筋混凝土栏杆大样图(X型图案)

0

minghanxi    发表于2012-11-6    2886人浏览  1人跟帖   等级:   来自:路桥节点详图  

桥梁钢筋混凝土栏杆带大样图

0

minghanxi    发表于2012-11-6    3421人浏览  1人跟帖   等级:   来自:路桥节点详图  

桥梁复古式钢筋混凝土栏杆大样图(抱鼓)

0

minghanxi    发表于2012-11-6    3282人浏览  2人跟帖   等级:   来自:路桥节点详图  

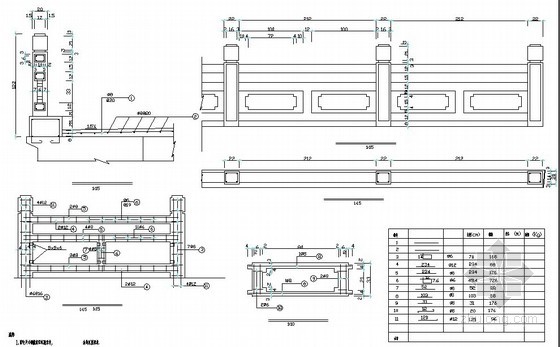
桥梁工程钢筋混凝土栏杆大样图

0

minghanxi    发表于2012-11-6    6683人浏览  4人跟帖   等级:   来自:路桥节点详图  

桥梁人行道钢筋混凝土栏杆大样图

0

minghanxi    发表于2012-11-6    2875人浏览  1人跟帖   等级:   来自:路桥节点详图  

桥梁双菱形钢筋混凝土栏杆大样图

0

minghanxi    发表于2012-11-6    2160人浏览  1人跟帖   等级:   来自:路桥节点详图  

桥梁钢筋混凝土栏杆大样图

0

xdg007    发表于2012-11-5    10094人浏览  1人跟帖   等级:   来自:路桥节点详图  

共2张图纸

0

thinkpadlsj    发表于2012-10-31    854人浏览  1人跟帖   等级:   来自:路桥节点详图  

共6张图纸

0

442474309    发表于2012-10-30    3066人浏览  2人跟帖   等级:   来自:路桥节点详图  

Ⅱ级围岩隧道全断面开挖(钻爆法)炮眼布置图,共2张