八角
发表于2010-12-20
1952人浏览
1人跟帖
等级:
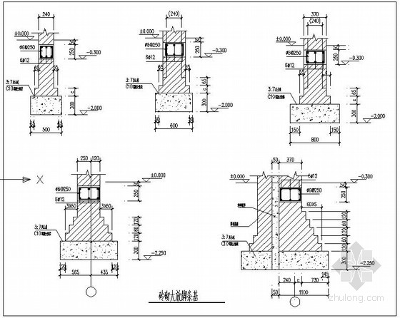
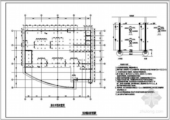
来自:混凝土节点详图 