悟惜瑶
发表于2010-11-19
5096人浏览
1人跟帖
等级:
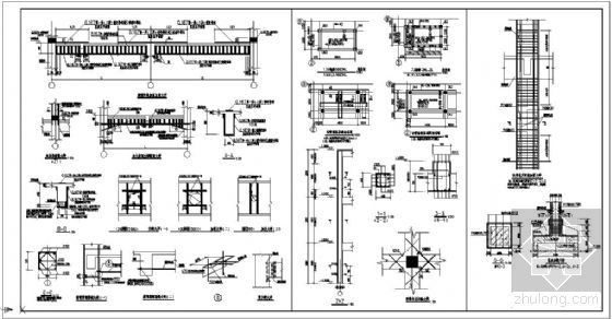
来自:混凝土节点详图 
达芙妮
发表于2010-11-18
978人浏览
1人跟帖
等级:
来自:混凝土节点详图 
flyegg111
发表于2010-11-16
1595人浏览
1人跟帖
等级:
来自:混凝土节点详图 
达芙妮
发表于2010-11-12
1060人浏览
1人跟帖
等级:
来自:混凝土节点详图 