混凝土节点详图_结构设计图片
本小组汇集图集、预应力、平法构造等混凝土节点详图。需要的龙友可以进行下载,也可以上传混凝土结构详图的相关资料,与建筑人一起分享!
  • 87887成员
  • 7556主题
  • 9477回复
  • 0热度
  • 0周热度
  • 0月热度
  • 0总热度

了解更多

检索到7546条内容

0

ZD2006    发表于2009-5-7    4163人浏览  1人跟帖   等级:   来自:混凝土节点详图  

某集水井电梯井通用剖面节点构造详图,共1个节点

0

ZD2006    发表于2009-5-7    1465人浏览  1人跟帖   等级:   来自:混凝土节点详图  

某钢楼梯(单跑)节点构造详图,共1张图纸

0

am061722    发表于2009-5-7    2098人浏览  1人跟帖   等级:   来自:混凝土节点详图  

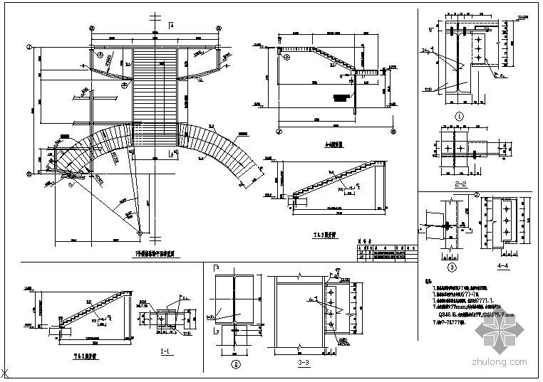
某钢结构圆弧楼梯节点构造详图,共5张图纸

0

am061722    发表于2009-5-7    1773人浏览  1人跟帖   等级:   来自:混凝土节点详图  

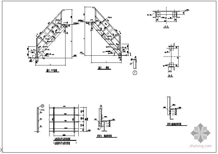
某钢结构三折楼梯节点构造详图,共2张图纸

0

am061722    发表于2009-5-7    3948人浏览  1人跟帖   等级:   来自:混凝土节点详图  

某钢结构三跑楼梯节点构造详图,共4张图纸

0

am061722    发表于2009-5-7    2916人浏览  1人跟帖   等级:   来自:混凝土节点详图  

某钢结构两折楼梯节点构造详图,共4张图纸

0

am061722    发表于2009-5-7    1854人浏览  1人跟帖   等级:   来自:混凝土节点详图  

某钢结构两跑楼梯节点构造详图,共4张图纸

0

am061722    发表于2009-5-7    1834人浏览  1人跟帖   等级:   来自:混凝土节点详图  

某钢结构单跑楼梯节点构造详图,共1张图纸

0

ZD2006    发表于2009-5-7    1325人浏览  1人跟帖   等级:   来自:混凝土节点详图  

某防爆波井大样节点构造详图,共1张图纸

0

ZD2006    发表于2009-5-7    2389人浏览  1人跟帖   等级:   来自:混凝土节点详图  

某电梯井坑大样节点构造详图(2),共1张图纸

0

ZD2006    发表于2009-5-7    1641人浏览  1人跟帖   等级:   来自:混凝土节点详图  

某电梯井坑大样节点构造详图(1),共1张图纸

0

ZD2006    发表于2009-5-7    1998人浏览  1人跟帖   等级:   来自:混凝土节点详图  

某地下室墙体大样节点构造详图(2),共1张图纸

0

ZD2006    发表于2009-5-7    2289人浏览  1人跟帖   等级:   来自:混凝土节点详图  

某地下室墙体大样节点构造详图(1),共1张图纸

0

ZD2006    发表于2009-5-7    1424人浏览  1人跟帖   等级:   来自:混凝土节点详图  

某地下室某挡土墙人防墙表节点构造详图,共1张图纸

0

ZD2006    发表于2009-5-7    1021人浏览  1人跟帖   等级:   来自:混凝土节点详图  

某地下室底板梁节点构造详图,共1张图纸

0

ZD2006    发表于2009-5-7    1058人浏览  1人跟帖   等级:   来自:混凝土节点详图  

某地下室底板后浇带大样节点构造详图,共1张图纸

0

ZD2006    发表于2009-5-7    2632人浏览  1人跟帖   等级:   来自:混凝土节点详图  

某地下室挡土墙人防墙及附件大样节点构造详图,共1张图纸

0

ZD2006    发表于2009-5-7    1356人浏览  1人跟帖   等级:   来自:混凝土节点详图  

某地下连续墙观测点节点构造详图,共1张图纸

0

ZD2006    发表于2009-5-7    1498人浏览  1人跟帖   等级:   来自:混凝土节点详图  

某地下连续墙钢筋大样节点构造详图,共1张图纸

0

ZD2006    发表于2009-5-7    6171人浏览  1人跟帖   等级:   来自:混凝土节点详图  

某地下储油槽节点构造详图,共1张图纸