赵树强1
发表于2011-4-2
1439人浏览
1人跟帖
等级:
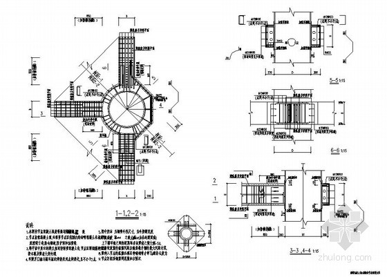
来自:混凝土节点详图 
flyegg111
发表于2011-4-1
8896人浏览
1人跟帖
等级:
来自:混凝土节点详图 