达芙妮
发表于2011-1-12
1166人浏览
1人跟帖
等级:
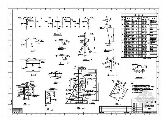
来自:混凝土节点详图 