flyegg111
发表于2011-3-21
2415人浏览
1人跟帖
等级:
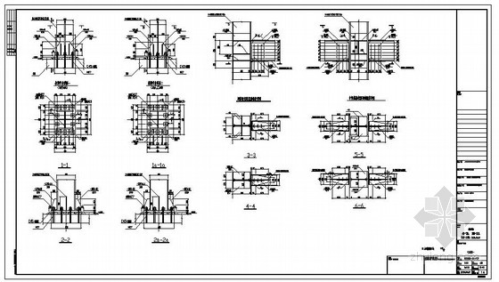
来自:钢结构节点详图 
flyegg111
发表于2011-3-21
5682人浏览
1人跟帖
等级:
来自:钢结构节点详图 
flyegg111
发表于2011-3-21
1956人浏览
1人跟帖
等级:
来自:钢结构节点详图 
flyegg111
发表于2011-3-21
1347人浏览
1人跟帖
等级:
来自:钢结构节点详图 
ywwfm
发表于2011-2-25
3172人浏览
1人跟帖
等级:
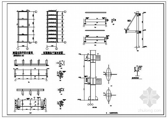
来自:钢结构节点详图 