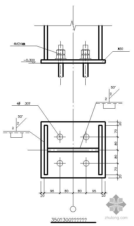
八角
发表于2009-6-11
962人浏览
1人跟帖
等级:
来自:钢结构节点详图 
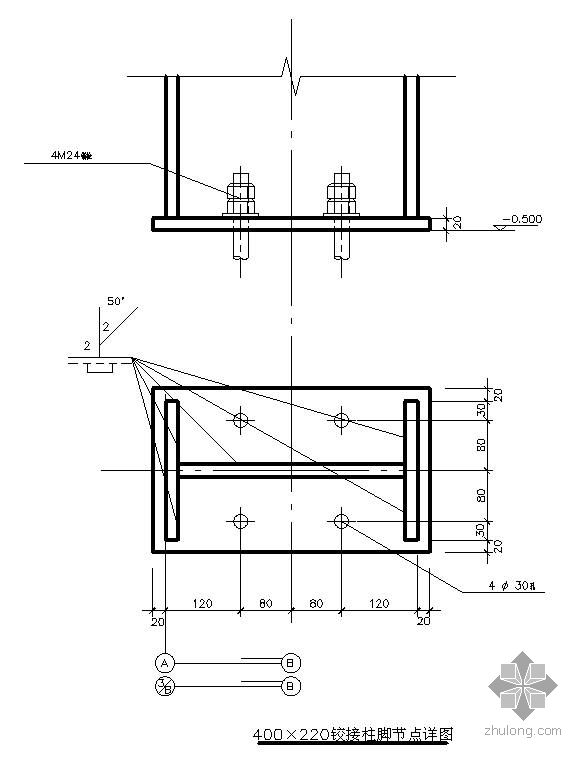
八角
发表于2009-6-11
1414人浏览
1人跟帖
等级:
来自:钢结构节点详图 