zhongguang3
发表于2009-5-8
4729人浏览
1人跟帖
等级:
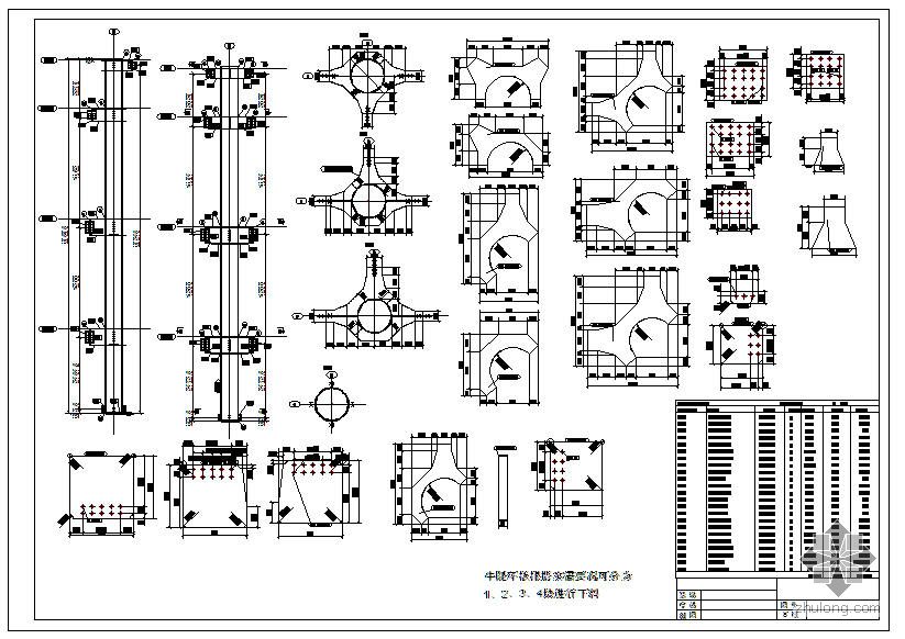
来自:钢结构节点详图 