春光灿烂的
发表于2010-10-28
8644人浏览
2人跟帖
等级:
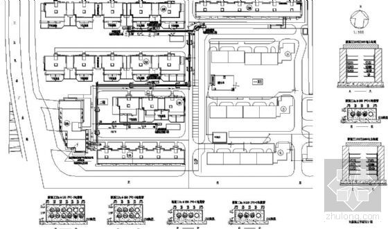
来自:电气节点详图 