随风随心
发表于2014-8-7
1366人浏览
5人跟帖 等级:
来自:主体结构
工程概况: 工程属于框架结构;地上4层,局部二层,建筑高度:20m;首层4.8米、二层及以上层高4.2米 ;总建筑面积:53000平方米。本工程局部最大跨度为22米、支模高度超过8米,属高大模板工程。 …… 施工工艺操...
最新回复:yuanyutong 2016-5-9 
魅力王
发表于2012-12-4
1918人浏览
3人跟帖 等级:
来自:主体结构
本工程为12个单体工程组成的群体工程,单体栋号工程 多、工程工程量差异大、施工工期长。均衡施工任务量,划分施工区域并将各区域插入时间合理的安排是本工程模板施工的难点;对于各施工区域劳动力、机械、设备、物资合理安排及...
最新回复:ntzch 2016-5-9 
zxm0311
发表于2008-4-1
2991人浏览
2人跟帖 等级:
来自:主体结构
1. 编制依据 2. 工程概况 主要包括C4-1楼、C4-2~8楼建筑安装工程,总建筑面积324474.15㎡,地下部分建筑面积87205.3㎡,地上部分建筑面积237268.85㎡,7栋高度为95m,1栋高度为37.95m板式高层。 本工程质量目标为...
最新回复:ntzch 2016-5-9 
京楚英雄
发表于2009-12-25
3402人浏览
3人跟帖 等级:
来自:主体结构
一、工程概况 本工程总建筑面积为195153平米,建筑总高度57.1m,地上14层(含设备层),地下4层,标准层层高3.90m,本工程结构形式为现浇钢筋混凝土核心筒+周边稀框架结构,基础为独立楼座筏板基础、中庭为独立基础并通过抗...
最新回复:ntzch 2016-5-8 
马1975
发表于2016-5-5
1138人浏览
1人跟帖 等级:
来自:主体结构
[天津]剪力墙结构住宅楼工程临时用电施工方案,主要包括工程概况、施工部署、临电方案、施工保护措施、用电安全等,可供参考学习。 …… 建筑面积约29648.63㎡,地上建筑面积19771.99㎡,地下建筑面积9876.64㎡,共8个单...
最新回复:xialuoke 2016-5-5 
游力由志
发表于2016-5-4
1762人浏览
1人跟帖 等级:
来自:主体结构
[广东]宿舍楼工程模板施工方案,承插型套扣式,主要包括工程概况、施工部署、施工方案选择、施工方法、安全防护措施等,可供参考学习。 …… 本工程位于广东省东莞市风岗镇碧湖大道侧,1号~5号为厂房,建筑高度40.2m,建...
最新回复:xialuoke 2016-5-4 
hujian262600
发表于2009-6-17
970人浏览
2人跟帖 等级:
来自:主体结构
教学楼工程位于一中院内,属于框架结构,地上5层,地下0层,建筑总高度21.5米,建筑总面积8748.0平方米,标准层层高3.9米,总工期360.0天 l、钢管脚落地手架,选用外径48mm,壁厚 3.50mm,钢材强度等级Q235-A,钢管表...
最新回复:yuanyutong 2016-5-4 
理得
发表于2014-6-18
4053人浏览
7人跟帖 等级:
来自:主体结构
工程概况: 该建筑占地面积10001.05平方米,建筑面积69310.27平方米(其中地上建筑面积:53072.47m2,地下建筑面积:16237.80m2)。A、D座24层,建筑高度82.45m,C、B座30层,建筑高度99.85m。 …… 支撑系统: ...
最新回复:ntzch 2016-5-2 
075581971581
发表于2016-5-1
1509人浏览
1人跟帖 等级:
来自:主体结构
[广西]办公楼工程大体积混凝土施工方案,22页,主要包括工程概况、施工部署。施工方案、安全施工措施等,可供参考学习。 …… 本项目总用地面积:3842.80㎡,总建筑面积:24415.09㎡,本项目地上1~6层为商业、7~17层为商...
最新回复:xialuoke 2016-5-1 
函雨
发表于2013-4-11
3372人浏览
3人跟帖 等级:
来自:主体结构
本工程地下一层,地上十八层,地上主体结构层高2.9m,建筑高度为53.7m,斜屋面最高点58.5m。本工程三层以上外檐装修采用ZLP630型电动吊篮提供作业面进行外装作业,涉及施工内容包括外保温施工、外墙涂料施工以及空调百叶窗、空调...
最新回复:谨记ni的容颜 2016-4-30 
海边正浪
发表于2010-2-4
2470人浏览
5人跟帖 等级:
来自:主体结构
本工程建筑面积共24万平方,二层地下室,基坑深度达10米以上,基坑边侧设有塔吊基础,濒临河海,地质条件复杂,采用钢筋砼灌注桩,计算详细。 根据本工程建筑造型及场 地情况,本工程拟选用6台QTZ63塔吊、2台QTZ40...
最新回复:孙金君 2016-4-29 
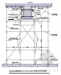
林程峰
发表于2008-3-10
2774人浏览
3人跟帖 等级:
来自:主体结构
本工程建筑面积为45626.93㎡,地下室2层,地上25层,地上建筑总高度为88.8m。本工程的主要高大模板部位为第一层正门入口中庭,面积为310㎡,高度为11m,梁截面最大为300×1000 mm,板厚为120mm,梁下钢管架支撑间距0.7m×0.9m×...
最新回复:jinhanhuanbao 2016-4-29 
wuyuankai
发表于2011-10-26
5129人浏览
2人跟帖 等级:
来自:主体结构
2、施工现场供电电源的确定:施工现场设有两台500KVA变压器。 3、外电线路情况: 1)外电线路与在建工程(含脚手架具)最小安全距离 10m。 2)与施工现场车道交叉处最低点与路面垂直距离 10m。 4、配电线路型...
最新回复:肖弘 2016-4-27 
lch1235777
发表于2011-11-22
4097人浏览
8人跟帖 等级:
来自:主体结构
本工程基础底板厚度为1300mm、1400mm、1500mm厚,局部1700mm厚,柱墩部分混凝土为1700mm、1800mm厚,为大体积混凝土。 …… 2.6大体积混凝土工程特点及难点 2.6.2质量标准高:本工程质量目标为确保结构“长城杯金奖...
最新回复:北京政华建业 2016-4-25 
匿名
发表于2011-12-6
5084人浏览
4人跟帖 等级:
来自:主体结构
2.3 工程重点及难点分析 2.3.1 底板厚度大、混凝土强度等级高,施工技术难度大 本工程底板超厚,混凝土强度等级高,属典型的大体积混凝土工程。其中厚度达3.0m及以上的底板面积约为7500 ㎡,厚度达3.5m 的底板面积约为...
最新回复:生物塔 2016-4-25 
看见笑脸
发表于2015-12-9
1339人浏览
2人跟帖 等级:
来自:主体结构
大剧院钢结构工程主要结构如:屋面网壳结构;楼座、格栅结构等,屋面钢结构长115m,宽87m,采用单层网壳结构,网壳钢骨柱从12.600标高处插入下部混凝土柱内。音乐厅屋面钢结构长91m,宽55m,采用单层网壳结构,网壳钢柱从12.600...
最新回复:蒋贤龙 2016-4-24 
审判女王
发表于2016-3-20
1830人浏览
2人跟帖 等级:
来自:主体结构
该工程为主塔楼与裙楼,1-27轴为126.9米、A-Y轴为119.9米,主塔楼总高为246.6米、裙楼最高为32.6米。 压型钢板叠合钢筋混凝土楼面层分布为7-17层、19层、20层、21-29层、35-41层、43-53层、54层、此压型钢板底要搭设钢管支...
最新回复:smith27 2016-4-23 
黄敬海啊
发表于2015-8-27
1518人浏览
2人跟帖 等级:
来自:主体结构
人防工程位于地下一层。平时功能为机动车库,战时功能为2个6级甲类二等人员掩蔽所、1个6级人防物资库、1个5级专业队装备掩蔽部、1个5级专业队队员掩蔽部、1个5级战时固定电站。 …… 平战转换施工内容: (1)孔口防...
最新回复:smith27 2016-4-23 
蒋少军12
发表于2015-7-28
1764人浏览
2人跟帖 等级:
来自:主体结构
[福建]框架核心筒结构办公大楼工程地下室工程施工方案,120页,附图较多,主要内容包括施工部署、重难点、各分项施工方案、安全文明施工措施、质量保证措施等,重难点很多,方案详细,可供参考学习。 …… 本工程项目总...
最新回复:smith27 2016-4-23 
798的距离
发表于2015-8-20
1260人浏览
2人跟帖 等级:
来自:主体结构
本工程A 座为框架剪力墙筒体结构,底板基础采用片筏基础置于钢筋混凝土钻孔灌注桩上,混凝土设计强度C45,抗渗等级为P20。B、C 座为框架结构,底板基础采用反梁片筏基础形式,混凝土设计强度C45,抗渗等级为P20。底板混凝土浇筑主...
最新回复:smith27 2016-4-23 