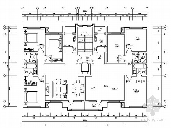
冷藏锋
发表于2011-8-25
5151人浏览
1人跟帖 等级:
来自:建筑户型图
户型:大二居、大三居 总开间x进深:13.8x13.4米 资料包含:4个户型平面图
最新回复:fcc8211 2011-8-25 
冷藏锋
发表于2011-8-18
3638人浏览
1人跟帖 等级:
来自:建筑户型图
总开间x进深:15x10.5米 户型:二居室 资料包含:1张户型平面图
最新回复:fcc8211 2011-8-18 
sweetroom
发表于2011-7-29
8144人浏览
1人跟帖 等级:
来自:建筑户型图
户型:三房两厅两卫,带入户花园,顶层复式 总开间x 进深:21.6x11.4米 图纸包含:户型平面图、南立面 图纸张数:1张CAD
最新回复:fcc8211 2011-7-29 
likun11
发表于2011-7-26
4413人浏览
1人跟帖 等级:
来自:建筑户型图
单栋开间x进深:14.4x11.4米;14.4x12.2米;18.5x12.6米 户型:二居室;四居室 图纸包含:标准层平面图、入口户型平面图、复式户型图 图纸张数:3张CAD
最新回复:fcc8211 2011-7-26 
xie520123
发表于2011-6-22
6242人浏览
1人跟帖 等级:
来自:建筑户型图
每个户型都是复式,一栋共4户 这个栋楼的平面呈梯形 图纸张数:3张CAD
最新回复:fcc8211 2011-6-22 
sweetroom
发表于2011-6-21
3737人浏览
1人跟帖 等级:
来自:建筑户型图
总开间x进深:18x8.9米 户型建筑面积:84/77平方米 户型:二居室 图纸包含:该户型的各层平面图 图纸张数:6张CAD
最新回复:fcc8211 2011-6-21 
sweetroom
发表于2011-6-21
4437人浏览
1人跟帖 等级:
来自:建筑户型图
总开间x进深:24.8x11.6米 户型建筑面积:135平方米 户型:四居室 图纸包含:该户型的各层平面图 图纸张数:6张CAD
最新回复:fcc8211 2011-6-21 
sweetroom
发表于2011-6-21
5328人浏览
1人跟帖 等级:
来自:建筑户型图
总开间x进深:22x10.95米 户型建筑面积:115平方米 户型:三居室 图纸包含:该户型的各层平面图 图纸张数:6张CAD
最新回复:fcc8211 2011-6-21 
luanwg
发表于2010-6-9
2543人浏览
1人跟帖 等级:
来自:建筑户型图
标准层建筑面积104.91平米 实用率(%):94.19 % 一梯户数:2 户 板式、塔式:板式 户型大小:中户型
最新回复:redest 2010-6-9 