胖咪
发表于2004-12-15
2369人浏览
等级:
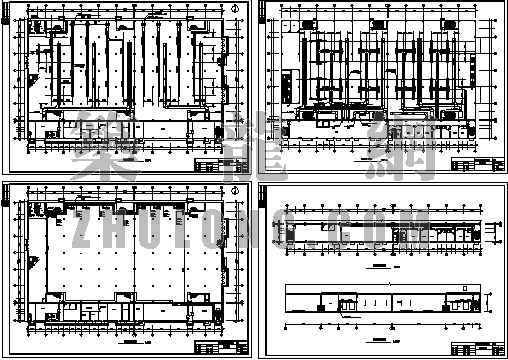
来自:建筑暖通施工图 
tpezzh-1967
发表于2004-11-30
4266人浏览
等级:
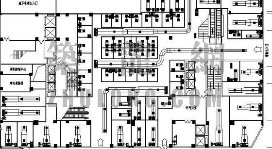
来自:建筑暖通施工图 