睡眼半睁
发表于2008-3-4
2030人浏览
1人跟帖
等级:
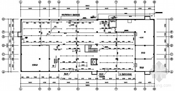
来自:建筑电气施工图 
睡眼半睁
发表于2008-3-3
3457人浏览
3人跟帖
等级:
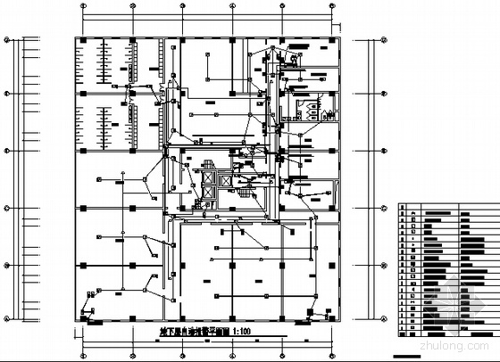
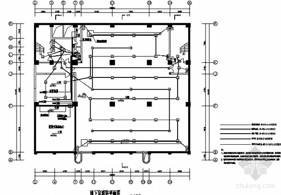
来自:建筑电气施工图 