本小组汇集办建筑节点详图资料。建筑师朋友们可以自由分享与下载室外工程、墙体构造、变形缝、屋面建筑构造、楼地面建筑构造、楼电梯建筑构造、建筑幕墙...
- 373438成员
- 3995主题
- 5344回复
- 0热度

本设计为:化粪池大样图 图纸包括:设计说明,平面图,剖面图,板详图等,共2张图纸。
本设计为:铁艺护栏详图集 内容包括:不同立面的铁艺护栏详图共计10组,10张图纸。
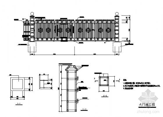
资料包含:立面图、剖面图、大样图 资料张数:1张CAD
铁艺大门的施工详图,包括大门的各方钢规格,尺寸,间距全有,还有铁艺门柱的施工图