本小组汇集办建筑节点详图资料。建筑师朋友们可以自由分享与下载室外工程、墙体构造、变形缝、屋面建筑构造、楼地面建筑构造、楼电梯建筑构造、建筑幕墙...
- 373438成员
- 3995主题
- 5344回复
- 0热度

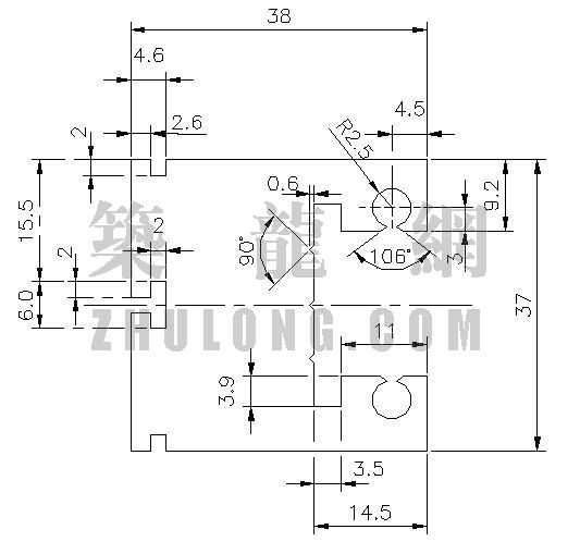
泰丰型材TFC-025,包含该型材的力学指标说明。
泰丰型材TFC-026,包含该型材的力学指标说明。
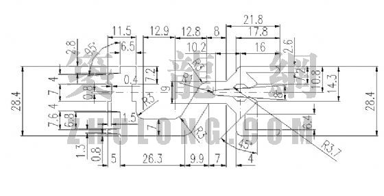
泰丰型材TFC-019,包含该型材的力学指标说明。
泰丰型材TFC-020,包含该型材的力学指标说明。
泰丰型材TFC-021,包含该型材的力学指标说明。
泰丰型材TFC-022,包含该型材的力学指标说明。
泰丰型材TFC-023,包含该型材的力学指标说明。
泰丰型材TFC-024,包含该型材的力学指标说明。
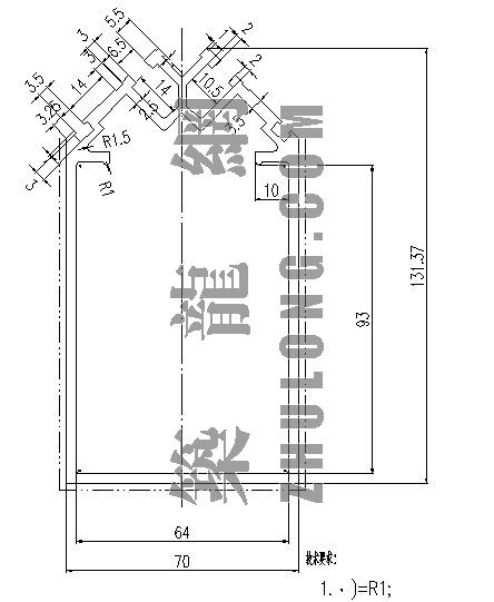
泰丰型材TFC-017,包含该型材的力学指标说明。
泰丰型材TFC-018,包含该型材的力学指标说明。