eggs
发表于2006-2-10
2258人浏览
1人跟帖
等级:
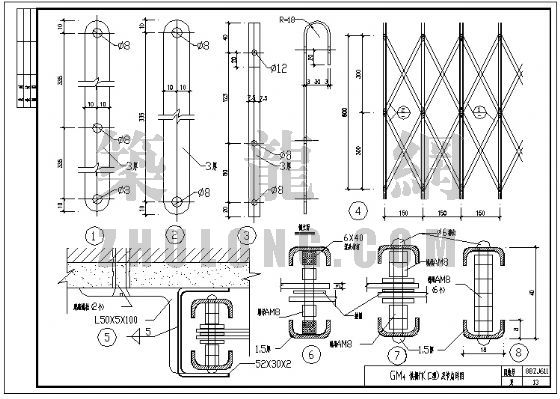
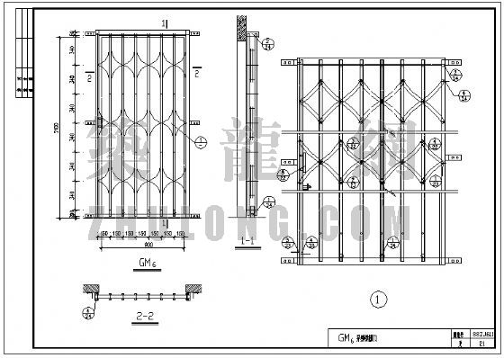
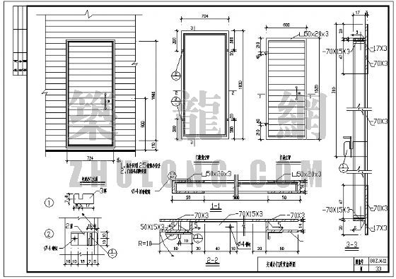
来自:建筑节点详图 