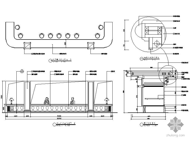
室内节点详图是构成大样图的重要条件,有了好的节点详图才能保证大样图的质量,本小组内包含了各种节点详图的资料,仅供参考。
- 203412成员
- 10510主题
- 13111回复
- 0热度

办公楼包间装修详图2 (2张) 内容有:平面图 天花布置图 房间立面图
办公楼包间装修详图 (2张) 内容有:平面图 天花布置图 包间立面图
总经理办公室装修详图 包括有:平面图 天花图 房间立面图 节点大样
会议室装修详图 包括有:平面图 天花布置图 房间立面图 节点大样
桑拿会所大厅服务台详图 40mm黑金砂台面+螺钿马赛克贴面