室内节点详图_室内设计图片
室内节点详图是构成大样图的重要条件,有了好的节点详图才能保证大样图的质量,本小组内包含了各种节点详图的资料,仅供参考。
  • 203412成员
  • 10510主题
  • 13111回复
  • 0热度
  • 0周热度
  • 0月热度
  • 0总热度

了解更多

检索到128条内容

0

MAX-2006    发表于2006-7-11    2286人浏览   等级:   来自:室内节点详图  

双面会议室壁纸墙体结构图

0

MAX-2006    发表于2006-7-11    2021人浏览   等级:   来自:室内节点详图  

单面卫生间石材墙体+会议室或办公室墙纸结构图

0

MAX-2006    发表于2006-7-11    2271人浏览   等级:   来自:室内节点详图  

单面卫生间石材墙体+会议室或办公室木饰面结构图

0

MAX-2006    发表于2006-7-11    3589人浏览   等级:   来自:室内节点详图  

结构砌块墙体饰面干挂石材结构图

0

MAX-2006    发表于2006-7-11    2560人浏览   等级:   来自:室内节点详图  

墙面竖向高1850mm干挂石材结构图

0

MAX-2006    发表于2006-7-11    2928人浏览   等级:   来自:室内节点详图  

结构钢筋砼墙体饰面干挂石材结构图

0

MAX-2006    发表于2006-7-11    3455人浏览   等级:   来自:室内节点详图  

结构柱饰面干挂石材结构图

0

MAX-2006    发表于2006-7-11    3706人浏览   等级:   来自:室内节点详图  

双面石材墙体湿挂结构图

0

MAX-2006    发表于2006-7-11    1975人浏览   等级:   来自:室内节点详图  

双面石材防水墙体结构图

0

MAX-2006    发表于2006-7-11    4151人浏览   等级:   来自:室内节点详图  

双面石材墙体湿挂结构图

0

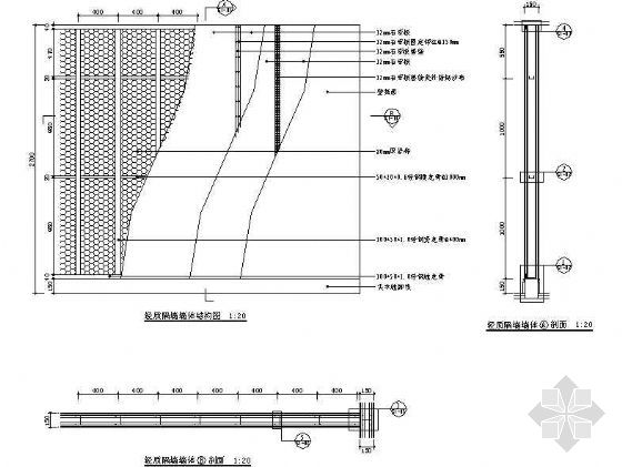
MAX-2006    发表于2006-7-11    4137人浏览   等级:   来自:室内节点详图  

轻质隔墙墙体结构图

0

MAX-2006    发表于2006-7-11    2076人浏览   等级:   来自:室内节点详图  

单面卫生间石材墙体+公共走廊墙纸结构图

0

MAX-2006    发表于2006-7-11    3740人浏览   等级:   来自:室内节点详图  

单面卫生间石材墙体+公共走廊木饰面结构图

0

zlm-zlm    发表于2006-6-7    1623人浏览  1人跟帖   等级:   来自:室内节点详图  

景观栏杆详图

0

zlm-zlm    发表于2006-6-7    1675人浏览  1人跟帖   等级:   来自:室内节点详图  

铁管护栏立面图

0

zlm-zlm    发表于2006-6-7    1770人浏览  1人跟帖   等级:   来自:室内节点详图  

围墙详图

0

zlm-zlm    发表于2006-6-7    1595人浏览  1人跟帖   等级:   来自:室内节点详图  

围墙详图

0

zlm-zlm    发表于2006-6-7    1761人浏览  1人跟帖   等级:   来自:室内节点详图  

围墙详图

0

zlm-zlm    发表于2006-6-7    1456人浏览  1人跟帖   等级:   来自:室内节点详图  

围墙详图

0

zlm-zlm    发表于2006-6-7    1280人浏览  1人跟帖   等级:   来自:室内节点详图  

围墙详图