室内节点详图_室内设计图片
室内节点详图是构成大样图的重要条件,有了好的节点详图才能保证大样图的质量,本小组内包含了各种节点详图的资料,仅供参考。
  • 203412成员
  • 10510主题
  • 13111回复
  • 0热度
  • 0周热度
  • 0月热度
  • 0总热度

了解更多

检索到3442条内容

0

闲闲    发表于2008-3-21    2903人浏览  1人跟帖   等级:   来自:室内节点详图  

吧台详图   包括:平面、立面、剖面图

0

8462    发表于2008-3-21    1365人浏览  1人跟帖   等级:   来自:室内节点详图  

别墅玄关详图   包括:立面、剖面、大样图

0

yt0    发表于2008-3-19    1600人浏览  1人跟帖   等级:   来自:室内节点详图  

简欧卧室立面设计图

0

fengm    发表于2008-3-19    1838人浏览  1人跟帖   等级:   来自:室内节点详图  

西餐操作间立面设计图

0

8462    发表于2008-3-19    2886人浏览  1人跟帖   等级:   来自:室内节点详图  

家居橱柜详图   包括:立面、剖面、大样图

0

8462    发表于2008-3-19    1579人浏览  1人跟帖   等级:   来自:室内节点详图  

装饰柜剖面详图   包括:平面、立面、剖面、大样图

0

cw8099    发表于2008-3-18    2442人浏览  1人跟帖   等级:   来自:室内节点详图  

公共卫生间立面设计图

0

8462    发表于2008-3-18    6974人浏览  1人跟帖   等级:   来自:室内节点详图  

门厅鞋柜剖面详图   包括:平面、立面、剖面图

0

8462    发表于2008-3-18    2127人浏览  1人跟帖   等级:   来自:室内节点详图  

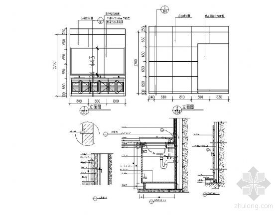
洗手池剖面详图   包括:立面、剖面图

0

8462    发表于2008-3-18    4643人浏览  1人跟帖   等级:   来自:室内节点详图  

主卧衣柜剖面详图   包括:立面、剖面、大样图

0

闲闲    发表于2008-3-18    1882人浏览  1人跟帖   等级:   来自:室内节点详图  

儿童房床头柜详图   包括:立面、剖面图

0

8462    发表于2008-3-18    4751人浏览  1人跟帖   等级:   来自:室内节点详图  

样板房电视墙装修详图   包括:立面、剖面图

0

9866    发表于2008-3-17    1617人浏览  1人跟帖   等级:   来自:室内节点详图  

家居箱包库立面设计图

0

moki    发表于2008-3-17    2631人浏览  1人跟帖   等级:   来自:室内节点详图  

家庭活动室立面设计图

0

9866    发表于2008-3-17    1322人浏览  1人跟帖   等级:   来自:室内节点详图  

别墅小卧室立面设计图

0

公主6    发表于2008-3-17    3064人浏览  1人跟帖   等级:   来自:室内节点详图  

中餐厨房立面设计图

0

zhuguosu    发表于2008-3-17    874人浏览  1人跟帖   等级:   来自:室内节点详图  

卫生间装修详图   包括:立面、剖面、大样图

0

moki    发表于2008-3-14    1763人浏览  1人跟帖   等级:   来自:室内节点详图  

优雅客厅立面设计图

0

yt0    发表于2008-3-14    1983人浏览  1人跟帖   等级:   来自:室内节点详图  

主卧室立面设计图

0

闲闲    发表于2008-3-14    1233人浏览  1人跟帖   等级:   来自:室内节点详图  

样板房卧室装修详图   包括:平面、立面、剖面图