室内节点详图是构成大样图的重要条件,有了好的节点详图才能保证大样图的质量,本小组内包含了各种节点详图的资料,仅供参考。
- 203412成员
- 10510主题
- 13111回复
- 0热度

发表于2008-1-3
1383人浏览
1人跟帖 等级:
来自:室内节点详图
洗浴中心总服务台详图 包括:平面、立面、剖面、大样图。
最新回复: 2008-1-3 
发表于2008-1-3
1072人浏览
1人跟帖 等级:
来自:室内节点详图
洗浴中心吊顶详图 包括:平面、剖面、大样图。
最新回复: 2008-1-3 
发表于2008-1-3
1132人浏览
1人跟帖 等级:
来自:室内节点详图
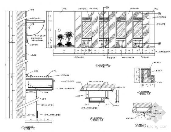
洗浴中心装饰墙详图 包括:立面、剖面、大样图。
最新回复: 2008-1-3 
发表于2008-1-3
1132人浏览
1人跟帖 等级:
来自:室内节点详图
洗浴中心玄关详图 包括:立面、剖面、大样图。
最新回复: 2008-1-3 
发表于2008-1-3
1018人浏览
1人跟帖 等级:
来自:室内节点详图
洗浴中心走廊详图 包括:立面、剖面、大样图。
最新回复: 2008-1-3 
发表于2008-1-2
1451人浏览
1人跟帖 等级:
来自:室内节点详图
会所吧台详图 包括:平面、立面、剖面、大样图。
最新回复: 2008-1-2 
发表于2008-1-2
1406人浏览
1人跟帖 等级:
来自:室内节点详图
美容院装修详图 包括:立面、剖面、大样图。
最新回复: 2008-1-2 
发表于2008-1-2
939人浏览
1人跟帖 等级:
来自:室内节点详图
美容院装修详图3 包括:立面、剖面图。
最新回复: 2008-1-2 
发表于2008-1-2
1232人浏览
1人跟帖 等级:
来自:室内节点详图
美容院装修详图2 包括:立面、剖面、大样图。
最新回复: 2008-1-2 
发表于2007-12-29
1854人浏览
1人跟帖 等级:
来自:室内节点详图
游泳馆大厅立面墙内部结构详图 包括:立面、剖面图。
最新回复: 2007-12-29 
发表于2007-12-29
1134人浏览
1人跟帖 等级:
来自:室内节点详图
游泳馆服务台详图 包括:平面、立面、剖面图。
最新回复: 2007-12-29 
发表于2007-12-29
1390人浏览
1人跟帖 等级:
来自:室内节点详图
洗浴空间大堂吊顶详图 包括:平面、剖面图。
最新回复: 2007-12-29 
发表于2007-12-12
1138人浏览
1人跟帖 等级:
来自:室内节点详图
健身中心接待台详图 包括:平面图、装饰立图、剖面节点详图。内容详细,适用范围广。
最新回复: 2007-12-12 
发表于2007-9-21
1027人浏览
1人跟帖 等级:
来自:室内节点详图
装饰柜详图
最新回复: 2007-9-21 
发表于2007-9-21
1208人浏览
1人跟帖 等级:
来自:室内节点详图
墙面装饰详图6
最新回复: 2007-9-21 
发表于2007-9-21
1205人浏览
1人跟帖 等级:
来自:室内节点详图
墙面装饰详图5
最新回复: 2007-9-21 
发表于2007-9-21
733人浏览
1人跟帖 等级:
来自:室内节点详图
墙面装饰详图4
最新回复: 2007-9-21 
发表于2007-9-21
865人浏览
1人跟帖 等级:
来自:室内节点详图
墙面装饰详图3
最新回复: 2007-9-21 
发表于2007-9-21
1029人浏览
1人跟帖 等级:
来自:室内节点详图
墙面装饰详图2
最新回复: 2007-9-21 
发表于2007-9-21
894人浏览
1人跟帖 等级:
来自:室内节点详图
墙面装饰详图1
最新回复: 2007-9-21 