室内节点详图_室内设计图片
室内节点详图是构成大样图的重要条件,有了好的节点详图才能保证大样图的质量,本小组内包含了各种节点详图的资料,仅供参考。
  • 203412成员
  • 10510主题
  • 13111回复
  • 0热度
  • 0周热度
  • 0月热度
  • 0总热度

了解更多

检索到332条内容

0

密桃多    发表于2008-7-3    1038人浏览  1人跟帖   等级:   来自:室内节点详图  

行长室装修详图

0

密桃多    发表于2008-7-3    1322人浏览  1人跟帖   等级:   来自:室内节点详图  

个人理财柜台详图

0

密桃多    发表于2008-7-3    962人浏览  1人跟帖   等级:   来自:室内节点详图  

银行电梯厅详图

0

密桃多    发表于2008-7-3    2405人浏览  1人跟帖   等级:   来自:室内节点详图  

银行首层柜台详图

0

密桃多    发表于2008-7-3    2094人浏览  1人跟帖   等级:   来自:室内节点详图  

银行柜员工作台详图

0

侵袭    发表于2008-6-30    1246人浏览  1人跟帖   等级:   来自:室内节点详图  

精品店过廊详图,包括:平面、顶面、立面、剖面详图。

0

9866    发表于2008-6-18    5142人浏览  1人跟帖   等级:   来自:室内节点详图  

银行营业柜台详图

0

735306    发表于2008-6-5    5206人浏览  1人跟帖   等级:   来自:室内节点详图  

汽车展厅平面设计

0

9866    发表于2008-5-29    1917人浏览  1人跟帖   等级:   来自:室内节点详图  

售楼处贵宾室立面图

0

9866    发表于2008-5-23    1937人浏览  1人跟帖   等级:   来自:室内节点详图  

售楼处交费大厅立面图

0

公主6    发表于2008-4-29    2293人浏览  1人跟帖   等级:   来自:室内节点详图  

木隔栅屏风详图

0

renu    发表于2008-4-29    1098人浏览  1人跟帖   等级:   来自:室内节点详图  

收费总台详图

0

9866    发表于2008-4-28    1368人浏览  1人跟帖   等级:   来自:室内节点详图  

大厅总服务台详图

0

moki    发表于2008-4-28    1178人浏览  1人跟帖   等级:   来自:室内节点详图  

发光体装饰造型详图

0

yt0    发表于2008-4-24    2048人浏览  1人跟帖   等级:   来自:室内节点详图  

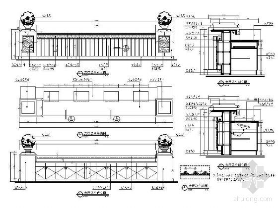
入口钢架玻璃雨蓬详图

0

yt0    发表于2008-4-11    1826人浏览  1人跟帖   等级:   来自:室内节点详图  

首层楼板檐口大样图

0

9866    发表于2008-4-3    5801人浏览  1人跟帖   等级:   来自:室内节点详图  

银行封闭式柜台详图,包括柜台剖面及钱兜详图大样。

0

yt0    发表于2008-4-3    1211人浏览  1人跟帖   等级:   来自:室内节点详图  

银行大堂立面设计详图

0

jersong    发表于2008-3-19    1827人浏览  1人跟帖   等级:   来自:室内节点详图  

电器店立面设计图

0

jersong    发表于2008-3-19    1060人浏览  1人跟帖   等级:   来自:室内节点详图  

通讯店道具详图Ⅱ   包括:平面、立面图