钢结构节点详图_结构设计图片
本小组汇集刚架、网架、桁架等钢结构节点详图。需要的龙友可以进行下载,也可以上传钢结构详图的相关资料,与建筑人一起分享!
  • 86616成员
  • 2575主题
  • 2901回复
  • 0热度
  • 0周热度
  • 0月热度
  • 0总热度

了解更多

检索到156条内容

0

gsl19870127    发表于2009-7-27    1722人浏览  1人跟帖   等级:   来自:钢结构节点详图  

某网架结构与支座反力节点构造详图,共2张图纸

0

gsl19870127    发表于2009-7-27    2786人浏览  1人跟帖   等级:   来自:钢结构节点详图  

某网架支座、支托大样节点构造详图,共1张图纸

0

八角    发表于2009-6-29    1276人浏览  1人跟帖   等级:   来自:钢结构节点详图  

某网架与屋面连接节点构造详图,共1张图纸

0

八角    发表于2009-6-26    1093人浏览  1人跟帖   等级:   来自:钢结构节点详图  

某网架屋面节点构造详图(三),共1张图纸

0

八角    发表于2009-6-26    962人浏览  1人跟帖   等级:   来自:钢结构节点详图  

某支托节点构造详图,共1张图纸

0

八角    发表于2009-6-26    1307人浏览  1人跟帖   等级:   来自:钢结构节点详图  

某轴支座大样节点构造详图,共1张图纸

0

八角    发表于2009-6-26    1180人浏览  1人跟帖   等级:   来自:钢结构节点详图  

某网架屋面节点构造详图(一),共1张图纸

0

八角    发表于2009-6-26    1112人浏览  1人跟帖   等级:   来自:钢结构节点详图  

某网架屋面节点构造详图(二),共1张图纸

0

八角    发表于2009-6-26    958人浏览  1人跟帖   等级:   来自:钢结构节点详图  

某H轴支座安装节点构造详图,共1张图纸

0

八角    发表于2009-6-26    936人浏览  1人跟帖   等级:   来自:钢结构节点详图  

某网架支座节点构造详图,共1张图纸

0

八角    发表于2009-6-26    839人浏览  1人跟帖   等级:   来自:钢结构节点详图  

某支托布置节点构造详图,共1张图纸

0

yjfa    发表于2009-6-22    1343人浏览  1人跟帖   等级:   来自:钢结构节点详图  

某网架屋面板节点构造详图   图纸包括:   屋面板图、檩条图、节点图共3张图纸。   

0

duoki    发表于2009-6-8    1197人浏览  1人跟帖   等级:   来自:钢结构节点详图  

某网架节点构造详图   共包括两张图纸。   

0

ZD2006    发表于2009-5-4    1248人浏览  1人跟帖   等级:   来自:钢结构节点详图  

某网架结构设计说明,共1张图纸

0

wwwwhy    发表于2009-4-29    1358人浏览  1人跟帖   等级:   来自:钢结构节点详图  

45m跨网架结构栈桥走廊,节点大样齐全,共4张图纸

0

ZD2006    发表于2009-4-27    1765人浏览  1人跟帖   等级:   来自:钢结构节点详图  

某雨棚节点构造详图(二),共1张图纸

0

ZD2006    发表于2009-4-27    2120人浏览  1人跟帖   等级:   来自:钢结构节点详图  

某雨棚节点构造详图(三),共1张图纸

0

ZD2006    发表于2009-4-27    1464人浏览  1人跟帖   等级:   来自:钢结构节点详图  

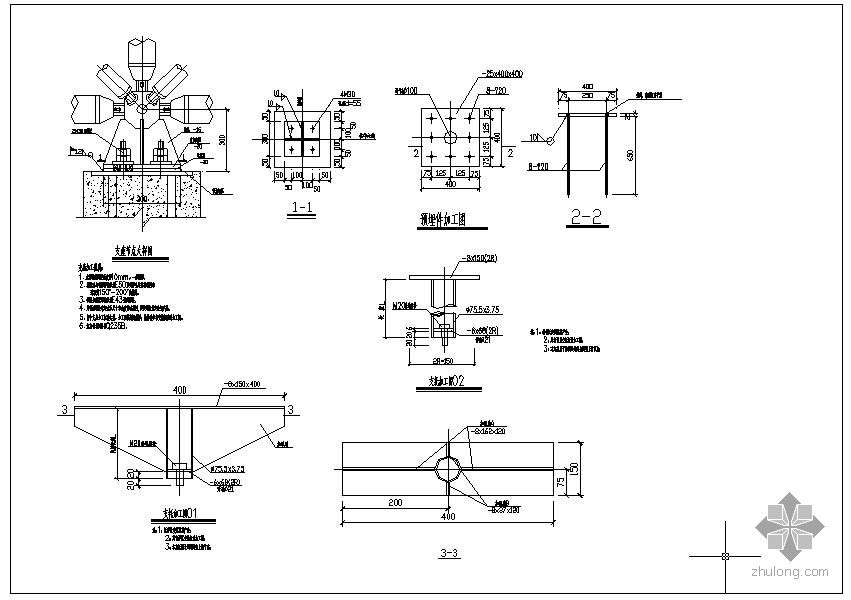
某预埋件节点构造详图,共2个节点

0

ZD2006    发表于2009-4-27    1045人浏览  1人跟帖   等级:   来自:钢结构节点详图  

某支托节点构造详图,共2张图纸

0

ZD2006    发表于2009-4-27    1222人浏览  1人跟帖   等级:   来自:钢结构节点详图  

某中天沟节点构造详图,共1个节点