钢结构节点详图_结构设计图片
本小组汇集刚架、网架、桁架等钢结构节点详图。需要的龙友可以进行下载,也可以上传钢结构详图的相关资料,与建筑人一起分享!
  • 86616成员
  • 2575主题
  • 2901回复
  • 0热度
  • 0周热度
  • 0月热度
  • 0总热度

了解更多

检索到609条内容

0

flyegg111    发表于2011-4-7    1457人浏览  1人跟帖   等级:   来自:钢结构节点详图  

某3.6米跨距标准层钢结构节点构造详图   共1张图纸。

0

八角    发表于2011-3-30    1306人浏览  1人跟帖   等级:   来自:钢结构节点详图  

某多跨厂房梁与梁连接节点构造详图   共两张图纸。

0

八角    发表于2011-3-30    1306人浏览  1人跟帖   等级:   来自:钢结构节点详图  

某多跨厂房柱与梁的连接节点构造详图   共三张图纸。   

0

八角    发表于2011-3-29    1176人浏览  1人跟帖   等级:   来自:钢结构节点详图  

某吊车梁及钢楼梯节点构造详图   共两张图纸。

0

思雨0308    发表于2011-3-17    1308人浏览  1人跟帖   等级:   来自:钢结构节点详图  

某钢框架梁梁端与柱的刚性连接节点构造详图   共1张图纸。

0

达芙妮    发表于2011-2-28    1605人浏览  1人跟帖   等级:   来自:钢结构节点详图  

新增圈梁及钢拉杆索引平面示意节点构造详图   共1张图纸。

0

达芙妮    发表于2011-2-25    1680人浏览  1人跟帖   等级:   来自:钢结构节点详图  

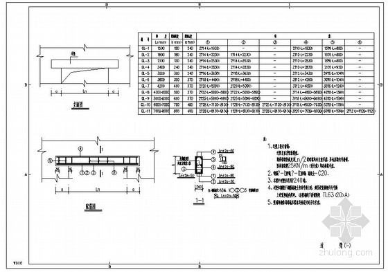
某厂房屋面钢结构节点详图   共1张图纸。

0

ZD2006    发表于2009-4-24    1525人浏览  2人跟帖   等级:   来自:钢结构节点详图  

某观光塔钢柱脚锚栓节点构造详图,共1张图纸

0

达芙妮    发表于2011-2-18    1438人浏览  1人跟帖   等级:   来自:钢结构节点详图  

某钢结构观光通道节点构造详图   共1张图纸。   

0

宁静一夏    发表于2011-2-16    2158人浏览  1人跟帖   等级:   来自:钢结构节点详图  

梁柱节点详图   共3张图纸。

0

huweiguo2008    发表于2011-2-16    829人浏览  1人跟帖   等级:   来自:钢结构节点详图  

某气楼构造详图   共1张图纸。

0

huweiguo2008    发表于2011-2-16    1078人浏览  1人跟帖   等级:   来自:钢结构节点详图  

柱脚构造详图   共1张图纸。

0

茂忆    发表于2011-1-20    1216人浏览  1人跟帖   等级:   来自:钢结构节点详图  

刚架柱与墙梁连接构造详图   共2张图纸。

0

达芙妮    发表于2011-1-6    1261人浏览  1人跟帖   等级:   来自:钢结构节点详图  

某售楼部钢楼梯节点构造详图   共1张图纸。   

0

八角    发表于2011-1-6    1257人浏览  1人跟帖   等级:   来自:钢结构节点详图  

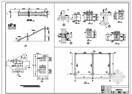
某钢结构框架会展中心部分结构图   共三张图纸。

0

达芙妮    发表于2011-1-5    2067人浏览  1人跟帖   等级:   来自:钢结构节点详图  

某钢格构柱结构详图   共1张图纸。

0

八角    发表于2010-12-31    1229人浏览  1人跟帖   等级:   来自:钢结构节点详图  

某钢管结构设计说明   共1张图纸。   

0

达芙妮    发表于2010-12-30    1914人浏览  1人跟帖   等级:   来自:钢结构节点详图  

某单轨吊连接设计说明及选用表及连接详图   共三张图纸。

0

达芙妮    发表于2010-12-30    2254人浏览  1人跟帖   等级:   来自:钢结构节点详图  

某过梁节点构造详图   共两张图纸。   

0

达芙妮    发表于2010-12-23    1400人浏览  1人跟帖   等级:   来自:钢结构节点详图  

某门式刚架边梁柱节点构造详图   共1张图纸。