dahj
发表于2012-9-18
5232人浏览
1人跟帖
等级:
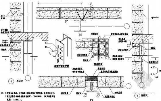
来自:混凝土节点详图 
匿名
发表于2012-5-29
1352人浏览
2人跟帖
等级:
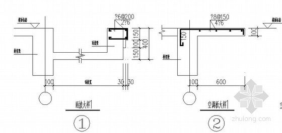
来自:混凝土节点详图 
flyegg111
发表于2011-12-31
1485人浏览
1人跟帖
等级:
来自:混凝土节点详图 