混凝土节点详图_结构设计图片
本小组汇集图集、预应力、平法构造等混凝土节点详图。需要的龙友可以进行下载,也可以上传混凝土结构详图的相关资料,与建筑人一起分享!
  • 87887成员
  • 7556主题
  • 9477回复
  • 0热度
  • 0周热度
  • 0月热度
  • 0总热度

了解更多

检索到663条内容

0

八角    发表于2010-12-23    1697人浏览  1人跟帖   等级:   来自:混凝土节点详图  

某构造柱施工节点构造详图   共6张图纸。

0

八角    发表于2010-12-23    2382人浏览  1人跟帖   等级:   来自:混凝土节点详图  

某框架柱抗震纵向钢筋连接构造节点详图   共两张图纸。

0

达芙妮    发表于2010-12-23    2240人浏览  1人跟帖   等级:   来自:混凝土节点详图  

某钢框架梁柱连接柱顶节点构造详图   共1张图纸。   

0

八角    发表于2010-12-22    908人浏览  1人跟帖   等级:   来自:混凝土节点详图  

某消能梁段与柱连接时的构造要求节点详图   共1张图纸,

0

达芙妮    发表于2010-12-22    1446人浏览  1人跟帖   等级:   来自:混凝土节点详图  

某现浇框架节点箍筋构造详图   共两张图纸。

0

八角    发表于2010-12-22    1196人浏览  1人跟帖   等级:   来自:混凝土节点详图  

某钢管混凝土柱节点构造详图   共两张图纸。   

0

达芙妮    发表于2010-12-22    1031人浏览  1人跟帖   等级:   来自:混凝土节点详图  

某异型柱转换形式及定位大样节点构造详图   共两张图纸。   

0

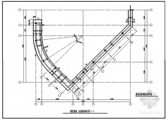
八角    发表于2010-12-22    1322人浏览  1人跟帖   等级:   来自:混凝土节点详图  

某裙房屋顶、出屋面结构大样节点详图   共6张图纸。   

0

达芙妮    发表于2010-12-22    1692人浏览  1人跟帖   等级:   来自:混凝土节点详图  

某组合柱牛腿节点构造详图   共1张图纸。

0

达芙妮    发表于2010-12-22    1029人浏览  1人跟帖   等级:   来自:混凝土节点详图  

某单牛腿节点构造详图   共1张图纸。

0

flyegg111    发表于2010-12-22    1897人浏览  1人跟帖   等级:   来自:混凝土节点详图  

某矩形柱转异形柱转换层节点详图   共两张图纸。

0

flyegg111    发表于2010-12-21    2392人浏览  1人跟帖   等级:   来自:混凝土节点详图  

某简支组合次梁的配筋构造图   共1张图纸。   

0

八角    发表于2010-12-21    1652人浏览  1人跟帖   等级:   来自:混凝土节点详图  

某框支梁配筋构造节点详图   共1张图纸。

0

八角    发表于2010-12-21    1432人浏览  1人跟帖   等级:   来自:混凝土节点详图  

某连续组合次梁的配筋构造节点详图   共1张图纸。

0

八角    发表于2010-12-21    1022人浏览  1人跟帖   等级:   来自:混凝土节点详图  

某预应力大样节点构造详图   共1张图纸。

0

达芙妮    发表于2010-12-20    1099人浏览  1人跟帖   等级:   来自:混凝土节点详图  

某框架结构板的构造节点详图   共6张图纸。

0

达芙妮    发表于2010-12-20    1428人浏览  1人跟帖   等级:   来自:混凝土节点详图  

某变形缝节点构造详图   共1张图纸。

0

达芙妮    发表于2010-12-20    1116人浏览  1人跟帖   等级:   来自:混凝土节点详图  

某框架结构常用节点构造详图   共1张图纸。

0

八角    发表于2010-12-20    1124人浏览  1人跟帖   等级:   来自:混凝土节点详图  

某24.3米预应力大梁节点构造详图   共1张图纸。

0

悟惜瑶    发表于2010-12-15    1403人浏览  1人跟帖   等级:   来自:混凝土节点详图  

框架结构常用结构节点大样   共2张图纸