ZD2006
发表于2009-4-13
1418人浏览
1人跟帖
等级:
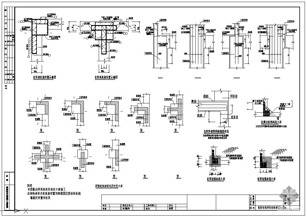
来自:混凝土节点详图 
ZD2006
发表于2009-4-13
3560人浏览
1人跟帖
等级:
来自:混凝土节点详图 
ZD2006
发表于2009-4-13
7074人浏览
1人跟帖
等级:
来自:混凝土节点详图 
ZD2006
发表于2009-4-13
1136人浏览
1人跟帖
等级:
来自:混凝土节点详图 