flyegg111
发表于2011-4-11
1443人浏览
1人跟帖
等级:
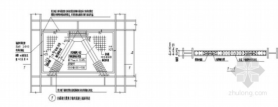
来自:混凝土节点详图 
flyegg111
发表于2011-3-17
1053人浏览
1人跟帖
等级:
来自:混凝土节点详图 