lingfeiyu
发表于2009-6-9
2046人浏览
1人跟帖
等级:
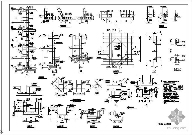
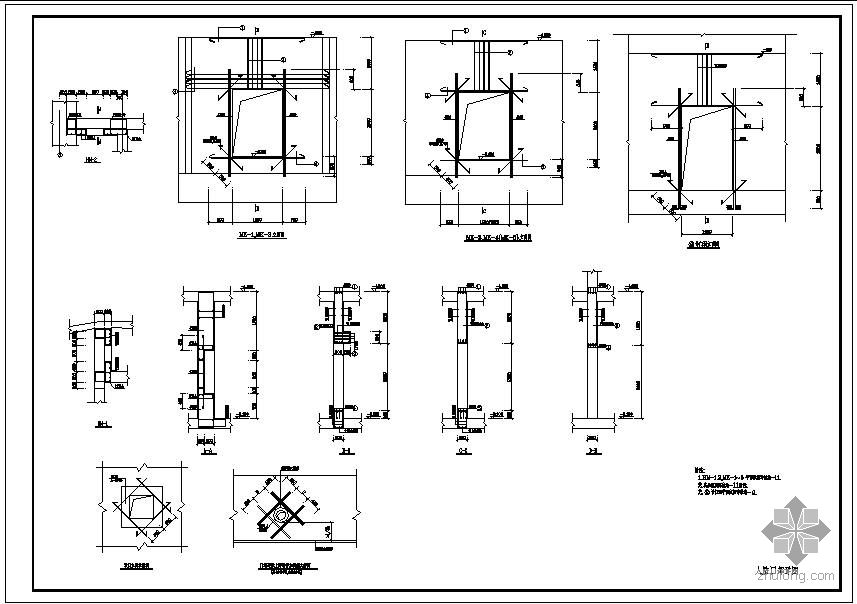
来自:混凝土节点详图 