悄悄告诉你,来到这里,景观施工图一切都成了小意思,景观行业最全节点详图统统都在这里!
- 150866成员
- 14248主题
- 19566回复
- 0热度

发表于2007-5-30
1123人浏览
1人跟帖 等级:
来自:园林景观节点详图
弧形景观花架详图包括平立剖及节点图等。
最新回复: 2007-5-30 
发表于2007-5-22
3304人浏览
1人跟帖 等级:
来自:园林景观节点详图
木廊架详图包括平面、剖面及详细节点大样图等。
最新回复: 2007-5-22 
发表于2007-5-22
998人浏览
1人跟帖 等级:
来自:园林景观节点详图
此图为休闲花架结构图,包括平立剖面图
最新回复: 2007-5-22 
发表于2007-5-21
1850人浏览
1人跟帖 等级:
来自:园林景观节点详图
钢架详图包括平立剖及详细节点大样。
最新回复: 2007-5-21 
发表于2007-5-21
850人浏览
1人跟帖 等级:
来自:园林景观节点详图
此图为凉架大样图,包括平面剖面及节点图等
最新回复: 2007-5-21 
发表于2007-5-18
1315人浏览
1人跟帖 等级:
来自:园林景观节点详图
此图为景观花架施工图,包括平立剖面图及节点图与说明等
最新回复: 2007-5-18 
发表于2007-5-18
801人浏览
1人跟帖 等级:
来自:园林景观节点详图
此图为花架结构详图,包括平立剖面图等
最新回复: 2007-5-18 
发表于2007-5-16
1097人浏览
1人跟帖 等级:
来自:园林景观节点详图
此图为廊架施工详图,包括平立剖面图及节点详图等
最新回复: 2007-5-16 
发表于2007-5-16
780人浏览
1人跟帖 等级:
来自:园林景观节点详图
花架节点详图包括平立剖等。
最新回复: 2007-5-16 
发表于2007-5-15
930人浏览
1人跟帖 等级:
来自:园林景观节点详图
此图为特色花架详图,包括平立剖面图等
最新回复: 2007-5-15 
发表于2007-5-11
1957人浏览
1人跟帖 等级:
来自:园林景观节点详图
木质花架详图包括平立剖及详细节点。
最新回复: 2007-5-11 
发表于2007-4-12
1356人浏览
1人跟帖 等级:
来自:园林景观节点详图
弧形花架节点详图包括平立剖等。
最新回复: 2007-4-12 
发表于2007-4-10
1925人浏览
1人跟帖 等级:
来自:园林景观节点详图
半圆形休息廊架详图包括平立剖及详细节点。
最新回复: 2007-4-10 
发表于2007-3-27
885人浏览
1人跟帖 等级:
来自:园林景观节点详图
弧形花架节点详图包括平立剖面。
最新回复: 2007-3-27 
发表于2007-3-23
1694人浏览
1人跟帖 等级:
来自:园林景观节点详图
木花架详图包括平立剖及大样图。
最新回复: 2007-3-23 
发表于2007-3-22
705人浏览
1人跟帖 等级:
来自:园林景观节点详图
花架施工详图包括平立剖及大样。
最新回复: 2007-3-22 
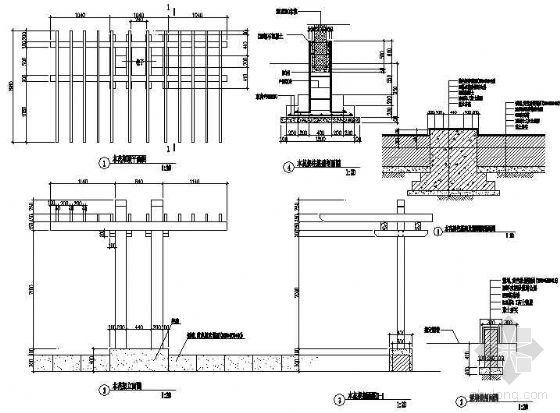
发表于2007-3-16
4073人浏览
1人跟帖 等级:
来自:园林景观节点详图
此图为弧形廊架的详细施工图,有结构和基础详图,供大家参考.
最新回复: 2007-3-16 
发表于2007-3-2
1625人浏览
1人跟帖 等级:
来自:园林景观节点详图
弧形廊架节点详图包括平立剖及大样图。
最新回复: 2007-3-2 
发表于2007-2-28
1957人浏览
1人跟帖 等级:
来自:园林景观节点详图
木制景观花架节点详图包括平立剖及详细基础详图。
最新回复: 2007-2-28 
发表于2007-2-27
1022人浏览
1人跟帖 等级:
来自:园林景观节点详图
钢框架节点详图包括平立面及基础详图。
最新回复: 2007-2-27 