悄悄告诉你,来到这里,景观施工图一切都成了小意思,景观行业最全节点详图统统都在这里!
- 150866成员
- 14248主题
- 19566回复
- 0热度

发表于2006-3-27
1477人浏览
1人跟帖 等级:
来自:园林景观节点详图
此图为遮棚大样图,包括平立剖面图
最新回复: 2006-3-27 
发表于2006-3-24
1211人浏览
1人跟帖 等级:
来自:园林景观节点详图
花架大样图包括平面图、立面图、剖面图、节点图
最新回复: 2006-3-24 
发表于2006-3-23
1455人浏览
1人跟帖 等级:
来自:园林景观节点详图
此图为花架结构详图,包括平立剖面图及节点详图等
最新回复: 2006-3-23 
发表于2006-3-23
4082人浏览
1人跟帖 等级:
来自:园林景观节点详图
此图为欧式廊柱结构图,包括平立剖面图及节点图等
最新回复: 2006-3-23 
发表于2006-3-23
1256人浏览
1人跟帖 等级:
来自:园林景观节点详图
廊架详图包括平面图、立面图
最新回复: 2006-3-23 
发表于2006-3-23
1540人浏览
1人跟帖 等级:
来自:园林景观节点详图
廊架结构详图包括结构立面图、结构剖面图、节点图
最新回复: 2006-3-23 
发表于2006-3-23
1076人浏览
1人跟帖 等级:
来自:园林景观节点详图
紫藤架详图包括平面图、立面图、剖面图、节点图
最新回复: 2006-3-23 
发表于2006-3-22
1684人浏览
1人跟帖 等级:
来自:园林景观节点详图
此图为弧墙廊架结构图,包括平立剖面图及节点详图配筋图等
最新回复: 2006-3-22 
发表于2006-3-22
1168人浏览
1人跟帖 等级:
来自:园林景观节点详图
花架详图包括平面图、立面图
最新回复: 2006-3-22 
发表于2006-3-22
1540人浏览
1人跟帖 等级:
来自:园林景观节点详图
景观廊详图1包括平面图、立面图
最新回复: 2006-3-22 
发表于2006-3-22
1399人浏览
1人跟帖 等级:
来自:园林景观节点详图
景观廊详图2包括平面图、立面图
最新回复: 2006-3-22 
发表于2006-3-22
2262人浏览
1人跟帖 等级:
来自:园林景观节点详图
此图为景观廊柱立面
最新回复: 2006-3-22 
发表于2006-3-22
1795人浏览
1人跟帖 等级:
来自:园林景观节点详图
廊亭详图包括平面图、立面图
最新回复: 2006-3-22 
发表于2006-3-21
1498人浏览
1人跟帖 等级:
来自:园林景观节点详图
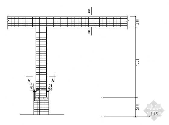
此图为某廊架结构图,包括立剖面图及节点详图等
最新回复: 2006-3-21 
发表于2006-3-21
1908人浏览
1人跟帖 等级:
来自:园林景观节点详图
此图为休闲长廊施工详图,包括平立剖面图、节点详图、配筋图等
最新回复: 2006-3-21 
发表于2006-3-21
1287人浏览
1人跟帖 等级:
来自:园林景观节点详图
花架详图包括平面图、立面图、剖面图、节点图
最新回复: 2006-3-21 
发表于2006-3-21
1606人浏览
1人跟帖 等级:
来自:园林景观节点详图
此图为休息廊施工详图,包括平立剖面图及节点详图配筋图等
最新回复: 2006-3-21 
发表于2006-3-20
1758人浏览
1人跟帖 等级:
来自:园林景观节点详图
弧型长廊详图包括平面图、立面图、剖面图、节点图
最新回复: 2006-3-20 
发表于2006-3-20
1444人浏览
1人跟帖 等级:
来自:园林景观节点详图
玻璃水廊详图包括平面图、剖面图
最新回复: 2006-3-20 
发表于2006-3-17
1962人浏览
1人跟帖 等级:
来自:园林景观节点详图
此图为某廊架结构图,包括平面图配筋图及节点详图等
最新回复: 2006-3-17 