bcv
发表于2009-3-5
3844人浏览
3人跟帖 等级:
来自:园林景观节点详图
某小区亲水平台、驳岸施工详图: 内容包含:亲水平台和驳岸的平面图、剖面图等结构详图。
最新回复:何兰兰 2015-10-23 
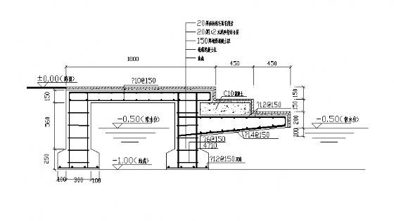
kkypm1983
发表于2013-6-19
4584人浏览
3人跟帖 等级:
来自:园林景观节点详图
亲水平台节点大样图,包括平面图、立面图、剖面图等,共一个CAD文件。
最新回复:yijiubuzaihu 2015-7-20 
Lansepubu
发表于2013-1-9
1967人浏览
2人跟帖 等级:
来自:园林景观节点详图
图纸包括: 平面图、立面图、剖面图、栏杆标准段、节点大样图。 1个CAD文件。
最新回复:wangjian0123 2015-6-24 
newone
发表于2008-5-29
2753人浏览
2人跟帖 等级:
来自:园林景观节点详图
栈桥及观景平台组景大样图:栈桥及观景平台平面 、栈桥及观景平台立面 、栈桥平面 、栈桥立面、栏杆E平面 、栏杆E立面 、栏杆1-1剖面、栈桥及观景平台基础、柱平面图、栈桥及观景平台框架平面布置图 、栈桥及观景平台托梁、板平...
最新回复:vareity 2015-3-17 
FALE
发表于2008-7-11
3941人浏览
2人跟帖 等级:
来自:园林景观节点详图
木栈道.观景桥施工图全套: 包含平面图、立面图、剖面图、布置图、基础图、节点详图等。
最新回复:ymin1230 2014-10-14 
winsun2000
发表于2008-5-22
9971人浏览
2人跟帖 等级:
来自:园林景观节点详图
亲水木平台全套施工图: 包含:平面图、剖面图、立面图、通用栏杆做法、基础施工图。
最新回复:13852358360 2014-8-15 
djh
发表于2008-8-6
2204人浏览
2人跟帖 等级:
来自:园林景观节点详图
湿地公园中木平台详图: 内容包含:平面图、立面图、石钵详图、平面布置图、底梁详图等。
最新回复:qdjscp 2014-8-9 
Zilicheung
发表于2014-7-3
4945人浏览 等级:
来自:园林景观节点详图
[浙江]城市滨水湿地公园观景台景观施工图 包括观景台平面图、立面图、剖立面图,共一个CAD文件。
最新回复:Zilicheung 2014-7-3 