园林景观节点详图_园林景观图片
悄悄告诉你,来到这里,景观施工图一切都成了小意思,景观行业最全节点详图统统都在这里!
  • 150866成员
  • 14248主题
  • 19566回复
  • 0热度
  • 0周热度
  • 0月热度
  • 0总热度

了解更多

检索到1821条内容

0

newone    发表于2007-5-14    1106人浏览  1人跟帖   等级:   来自:园林景观节点详图  

此图为道路铺装详图,包括平剖面图等

0

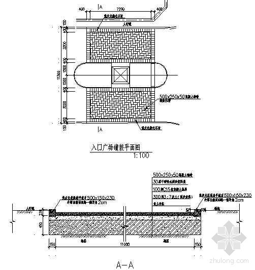
xinxing888    发表于2007-5-14    1218人浏览  1人跟帖   等级:   来自:园林景观节点详图  

入口广场铺装详图包括平面和剖面.

0

xinxing888    发表于2007-5-11    4080人浏览  1人跟帖   等级:   来自:园林景观节点详图  

水泥砖(及舒布洛克)铺装做法

0

xinxing888    发表于2007-5-11    3526人浏览  1人跟帖   等级:   来自:园林景观节点详图  

青石板(花岗岩.板岩及)铺装做法

0

xinxing888    发表于2007-5-11    3288人浏览  1人跟帖   等级:   来自:园林景观节点详图  

卵石铺装做法

0

xinxing888    发表于2007-5-10    1328人浏览  1人跟帖   等级:   来自:园林景观节点详图  

廊架下2米步道铺装详图包括平面和剖面。

0

xinxing888    发表于2007-5-10    1472人浏览  1人跟帖   等级:   来自:园林景观节点详图  

广场花岗岩压边做法

0

xinxing888    发表于2007-5-10    3447人浏览  1人跟帖   等级:   来自:园林景观节点详图  

弹性塑胶材料做法

0

xinxing888    发表于2007-5-10    819人浏览  1人跟帖   等级:   来自:园林景观节点详图  

道路(1.5米)单元详图包括平面和剖面。

0

xinxing888    发表于2007-5-10    655人浏览  1人跟帖   等级:   来自:园林景观节点详图  

道路(2.8米)单元详图包括平面和剖面。

0

xinxing888    发表于2007-5-10    1410人浏览  1人跟帖   等级:   来自:园林景观节点详图  

道路(4.2米)铺装大样图包括平面和剖面。

0

xinxing888    发表于2007-5-10    1277人浏览  1人跟帖   等级:   来自:园林景观节点详图  

道路(2米)铺装大样图包括平面和剖面。

0

xinxing888    发表于2007-5-10    1107人浏览  1人跟帖   等级:   来自:园林景观节点详图  

单元入口铺装大样图包括平面和剖面。

0

xinxing888    发表于2007-5-10    1202人浏览  1人跟帖   等级:   来自:园林景观节点详图  

滨河道路铺装详图包括平面和剖面。

0

xinxing888    发表于2007-5-10    1143人浏览  1人跟帖   等级:   来自:园林景观节点详图  

3米,4米道路铺装详图包括平面和剖面。

0

xinxing888    发表于2007-5-10    1885人浏览  1人跟帖   等级:   来自:园林景观节点详图  

6米,10米车行道路铺装详图包括平面和剖面。

0

newone    发表于2007-4-27    953人浏览  1人跟帖   等级:   来自:园林景观节点详图  

此图为某广场铺装详图,包括平面剖面图

0

newone    发表于2007-4-27    936人浏览  1人跟帖   等级:   来自:园林景观节点详图  

此图为某铺装大样图,包括平面剖面图

0

melissa    发表于2007-4-27    1338人浏览  1人跟帖   等级:   来自:园林景观节点详图  

此图为弹性胶垫地面断面图

0

newone    发表于2007-4-26    1193人浏览  1人跟帖   等级:   来自:园林景观节点详图  

此图为弹性胶垫地面断面图