eggs
发表于2006-6-13
2400人浏览
1人跟帖
等级:
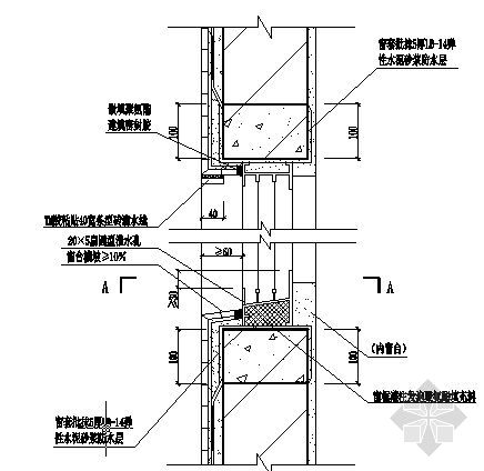
来自:建筑节点详图 
eggs
发表于2006-6-12
1991人浏览
1人跟帖
等级:
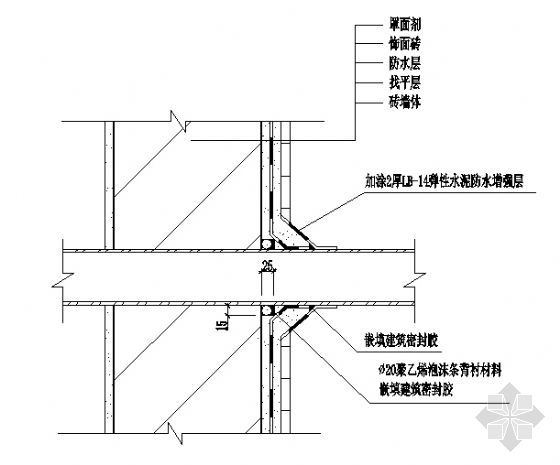
来自:建筑节点详图 
eggs
发表于2006-6-12
2070人浏览
1人跟帖
等级:
来自:建筑节点详图 