建筑节点详图_建筑设计图片
本小组汇集办建筑节点详图资料。建筑师朋友们可以自由分享与下载室外工程、墙体构造、变形缝、屋面建筑构造、楼地面建筑构造、楼电梯建筑构造、建筑幕墙...
  • 373438成员
  • 3995主题
  • 5344回复
  • 0热度
  • 0周热度
  • 0月热度
  • 0总热度

了解更多

检索到3995条内容

0

xikey    发表于2006-6-8    1492人浏览  1人跟帖   等级:   来自:建筑节点详图  

地下室外防外涂防水构造图(П级设防)

0

xikey    发表于2006-6-8    2759人浏览  1人跟帖   等级:   来自:建筑节点详图  

地下室散水坡防水节点构造图

0

eggs    发表于2006-6-8    7755人浏览  1人跟帖   等级:   来自:建筑节点详图  

卫生间排气孔孔位置图

0

xikey    发表于2006-6-8    1953人浏览  1人跟帖   等级:   来自:建筑节点详图  

地下室疏排水剖面示意图

0

xikey    发表于2006-6-8    1523人浏览  1人跟帖   等级:   来自:建筑节点详图  

地下室架空疏水防水构造(I级设防)

0

eggs    发表于2006-6-8    3759人浏览  1人跟帖   等级:   来自:建筑节点详图  

阳台线角大样

0

xikey    发表于2006-6-7    1135人浏览  1人跟帖   等级:   来自:建筑节点详图  

地下室外防内涂防水构造图(П级设防)

0

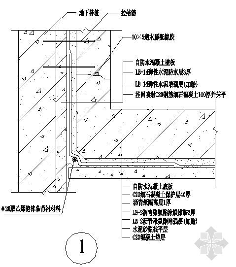
xikey    发表于2006-6-7    1380人浏览  1人跟帖   等级:   来自:建筑节点详图  

外防外贴(涂)法地下室顶板与壁板转角位防水构造2

0

xikey    发表于2006-6-7    1216人浏览  1人跟帖   等级:   来自:建筑节点详图  

地下室架空疏水防水构造(I级设防)2

0

xikey    发表于2006-6-7    1904人浏览  1人跟帖   等级:   来自:建筑节点详图  

地下室对拉模板螺栓(套管式、埋入式)节点防水

0

xikey    发表于2006-6-7    1717人浏览  1人跟帖   等级:   来自:建筑节点详图  

二合一地下连续墙防水构造图(П级设防)

0

xikey    发表于2006-6-7    1884人浏览  1人跟帖   等级:   来自:建筑节点详图  

地下室外防外贴防水构造图(I级设防)

0

eggs    发表于2006-6-7    5126人浏览  1人跟帖   等级:   来自:建筑节点详图  

室内防潮层大样

0

xikey    发表于2006-6-7    2196人浏览  1人跟帖   等级:   来自:建筑节点详图  

地下室深基坑抽、排水预埋井构造大样

0

xikey    发表于2006-6-7    2577人浏览  1人跟帖   等级:   来自:建筑节点详图  

地下室施工缝防水节点图

0

xikey    发表于2006-6-7    1561人浏览  1人跟帖   等级:   来自:建筑节点详图  

地下室背水面防水构造图3

0

xikey    发表于2006-6-7    1954人浏览  1人跟帖   等级:   来自:建筑节点详图  

地下室底板、壁板预埋式变形缝节点构造图

0

xikey    发表于2006-6-6    1865人浏览  1人跟帖   等级:   来自:建筑节点详图  

地下室外防外贴防水构造图

0

xikey    发表于2006-6-6    2216人浏览  1人跟帖   等级:   来自:建筑节点详图  

地下室疏水层平面布置图

0

xikey    发表于2006-6-6    1878人浏览  1人跟帖   等级:   来自:建筑节点详图  

地下室背水面防水构造图