wxh5855
发表于2009-7-3
15070人浏览
4人跟帖
等级:
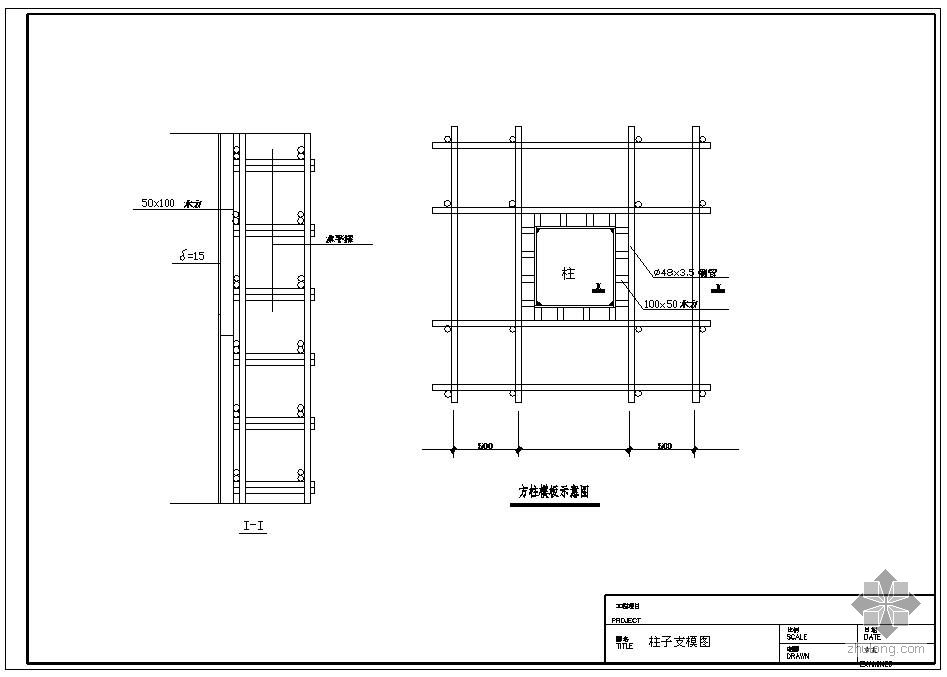
来自:混凝土节点详图 