seuymwang
发表于2009-6-30
4625人浏览
2人跟帖
等级:
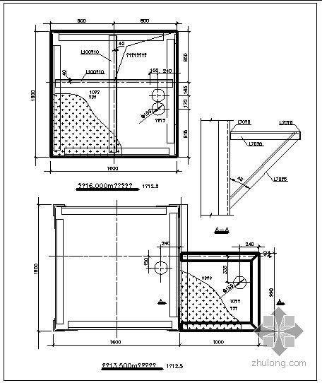
来自:混凝土节点详图 
lixin2535
发表于2009-6-30
8650人浏览
3人跟帖
等级:
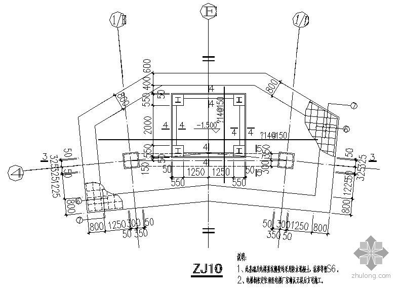
来自:混凝土节点详图 