思雨0308
发表于2011-4-22
7834人浏览
1人跟帖
等级:
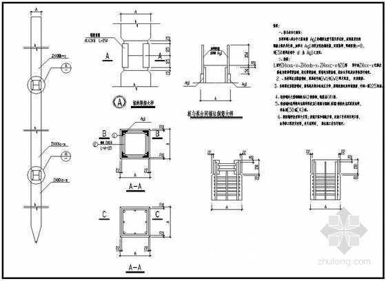
来自:混凝土节点详图 