钢结构节点详图_结构设计图片
本小组汇集刚架、网架、桁架等钢结构节点详图。需要的龙友可以进行下载,也可以上传钢结构详图的相关资料,与建筑人一起分享!
  • 86616成员
  • 2575主题
  • 2901回复
  • 0热度
  • 0周热度
  • 0月热度
  • 0总热度

了解更多

检索到2556条内容

0

ZD2006    发表于2009-4-27    1012人浏览  1人跟帖   等级:   来自:钢结构节点详图  

某癣材节点构造详图,共9张图纸

0

ZD2006    发表于2009-4-27    5269人浏览  2人跟帖   等级:   来自:钢结构节点详图  

某屋面檩条布置节点构造详图,共1张图纸

0

ZD2006    发表于2009-4-27    1236人浏览  1人跟帖   等级:   来自:钢结构节点详图  

某屋面板及墙板系统节点构造详图,共1张图纸

0

ZD2006    发表于2009-4-27    853人浏览  1人跟帖   等级:   来自:钢结构节点详图  

某屋脊节点构造详图[2],共1个节点

0

ZD2006    发表于2009-4-27    908人浏览  1人跟帖   等级:   来自:钢结构节点详图  

某屋脊节点构造详图[1],共1个节点

0

ZD2006    发表于2009-4-27    1050人浏览  1人跟帖   等级:   来自:钢结构节点详图  

某屋脊及屋面板搭接节点构造详图,共1张图纸

0

ZD2006    发表于2009-4-27    3746人浏览  1人跟帖   等级:   来自:钢结构节点详图  

某屋脊盖板节点构造详图,共1个节点

0

hzjxq    发表于2009-4-27    1502人浏览  1人跟帖   等级:   来自:钢结构节点详图  

某屋顶风管出口节点构造详图,共1张图纸

0

ZD2006    发表于2009-4-27    1047人浏览  1人跟帖   等级:   来自:钢结构节点详图  

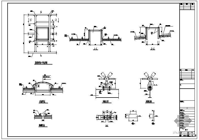
某网架支座节点构造详图,共3张图纸

0

ZD2006    发表于2009-4-27    1427人浏览  1人跟帖   等级:   来自:钢结构节点详图  

某网架与屋面连接节点构造详图,共4个节点

0

ZD2006    发表于2009-4-27    1590人浏览  1人跟帖   等级:   来自:钢结构节点详图  

某网架屋面风机骨架平面布置节点构造详图,共1张图纸

0

ZD2006    发表于2009-4-27    1864人浏览  1人跟帖   等级:   来自:钢结构节点详图  

某网架屋面采光带端节点构造详图,共1张图纸

0

ZD2006    发表于2009-4-27    1216人浏览  1人跟帖   等级:   来自:钢结构节点详图  

某网架屋面板侧向搭接节点构造详图,共1张图纸

0

ZD2006    发表于2009-4-27    1022人浏览  1人跟帖   等级:   来自:钢结构节点详图  

某网架屋脊节点构造详图[2],共1个节点

0

ZD2006    发表于2009-4-27    1152人浏览  1人跟帖   等级:   来自:钢结构节点详图  

某网架屋脊节点构造详图[1],共1个节点

0

ZD2006    发表于2009-4-27    2574人浏览  1人跟帖   等级:   来自:钢结构节点详图  

某网架天沟节点构造详图,共1张图纸

0

qiaoyh    发表于2009-4-27    8672人浏览  4人跟帖   等级:   来自:钢结构节点详图  

某网架马道节点构造详图,共1张图纸

0

wwwwhy    发表于2009-4-27    1040人浏览  1人跟帖   等级:   来自:钢结构节点详图  

某网架节点构造详图,共4张图纸

0

ZD2006    发表于2009-4-27    7780人浏览  1人跟帖   等级:   来自:钢结构节点详图  

某推拉门节点构造详图,共1张图纸

0

ZD2006    发表于2009-4-27    1205人浏览  1人跟帖   等级:   来自:钢结构节点详图  

某顺坡方向搭接节点构造详图,共1个节点