室内节点详图_室内设计图片
室内节点详图是构成大样图的重要条件,有了好的节点详图才能保证大样图的质量,本小组内包含了各种节点详图的资料,仅供参考。
  • 203412成员
  • 10510主题
  • 13111回复
  • 0热度
  • 0周热度
  • 0月热度
  • 0总热度

了解更多

检索到4887条内容

0

小龙包88    发表于2010-5-20    2310人浏览  1人跟帖   等级:   来自:室内节点详图  

走入式衣柜详图

0

hcx1980    发表于2010-5-19    2197人浏览  1人跟帖   等级:   来自:室内节点详图  

桑拿休闲区双开门详图

0

hcx1980    发表于2010-5-19    1709人浏览  1人跟帖   等级:   来自:室内节点详图  

桑拿区工作柜详图

0

hcx1980    发表于2010-5-19    2386人浏览  1人跟帖   等级:   来自:室内节点详图  

桑拿区包房门详图

0

hcx1980    发表于2010-5-19    1599人浏览  1人跟帖   等级:   来自:室内节点详图  

桑拿区接待台详图

0

hcx1980    发表于2010-5-19    1741人浏览  1人跟帖   等级:   来自:室内节点详图  

桑拿区更衣间详图

0

hcx1980    发表于2010-5-19    2034人浏览  1人跟帖   等级:   来自:室内节点详图  

按摩房洗手台大样

0

小龙包88    发表于2010-5-18    3796人浏览  1人跟帖   等级:   来自:室内节点详图  

儿童房移门衣柜详图

0

小龙包88    发表于2010-5-18    1963人浏览  1人跟帖   等级:   来自:室内节点详图  

别墅更衣室详图

0

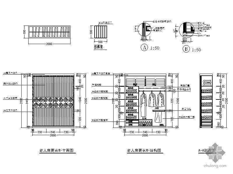
小龙包88    发表于2010-5-17    5715人浏览  1人跟帖   等级:   来自:室内节点详图  

现代居室老人房衣柜详图

0

雪中飞飞    发表于2010-5-14    5147人浏览  1人跟帖   等级:   来自:室内节点详图  

办公楼休闲水吧台详图

0

小龙包88    发表于2010-5-13    2723人浏览  1人跟帖   等级:   来自:室内节点详图  

办公楼接待台详图

0

雪中飞飞    发表于2010-5-13    2579人浏览  1人跟帖   等级:   来自:室内节点详图  

中式餐厅弧型吧台详图

0

yt0    发表于2010-5-12    2806人浏览  1人跟帖   等级:   来自:室内节点详图  

办公大堂瀑布墙详图

0

yt0    发表于2010-5-12    1186人浏览  1人跟帖   等级:   来自:室内节点详图  

夜总会造型台详图

0

yt0    发表于2010-5-12    1355人浏览  1人跟帖   等级:   来自:室内节点详图  

夜总会沙发详图

0

yt0    发表于2010-5-12    1676人浏览  1人跟帖   等级:   来自:室内节点详图  

夜总会吧台详图

0

lmjz    发表于2010-5-10    3385人浏览  1人跟帖   等级:   来自:室内节点详图  

某电梯设计方案详图(10张)      包括:封面、设计说明、电梯基础平面图、电梯顶图、电梯立面图、电梯节点、电梯坑结构图

0

雪中飞飞    发表于2010-5-7    3310人浏览  1人跟帖   等级:   来自:室内节点详图  

欧式酒柜详图

0

smltchen    发表于2010-4-30    1389人浏览  1人跟帖   等级:   来自:室内节点详图  

印度碳烤台详图