室内节点详图是构成大样图的重要条件,有了好的节点详图才能保证大样图的质量,本小组内包含了各种节点详图的资料,仅供参考。
- 203412成员
- 10510主题
- 13111回复
- 0热度

发表于2010-1-11
2395人浏览
1人跟帖 等级:
来自:室内节点详图
经理室屏风详图 屏风:砂面不锈钢踢脚线+银灰色铝塑板饰面+8厚钢化清玻+暗藏小射灯
最新回复: 2010-1-11 
发表于2009-12-29
1430人浏览
1人跟帖 等级:
来自:室内节点详图
走廊立面图 详细的材料说明和标注
最新回复: 2009-12-29 
发表于2009-12-28
1323人浏览
1人跟帖 等级:
来自:室内节点详图
标准间立面图 以及详细的材料说明
最新回复: 2009-12-28 
发表于2009-12-28
11452人浏览
1人跟帖 等级:
来自:室内节点详图
某办公室平面图 其中包括详细的材料说明和标注
最新回复: 2009-12-28 
发表于2009-12-17
1163人浏览
1人跟帖 等级:
来自:室内节点详图
休息大厅立面图
最新回复: 2009-12-17 
发表于2009-12-16
1996人浏览
1人跟帖 等级:
来自:室内节点详图
大会议室立面图 以及详细的材料说明和标注说明
最新回复: 2009-12-16 
发表于2009-12-16
1177人浏览
1人跟帖 等级:
来自:室内节点详图
服务台详图 以及详细的材料说明和标注说明
最新回复: 2009-12-16 
发表于2009-12-11
931人浏览
1人跟帖 等级:
来自:室内节点详图
大厅立面图 主要内容包括材料说明和标注说明
最新回复: 2009-12-11 
发表于2009-12-11
1335人浏览
1人跟帖 等级:
来自:室内节点详图
过道立面图
最新回复: 2009-12-11 
发表于2009-12-10
1529人浏览
1人跟帖 等级:
来自:室内节点详图
中式前厅立面图
最新回复: 2009-12-10 
发表于2009-12-9
1119人浏览
1人跟帖 等级:
来自:室内节点详图
大厅立面图 以及详细的材料说明和标注
最新回复: 2009-12-9 
发表于2009-12-9
4806人浏览
1人跟帖 等级:
来自:室内节点详图
办公室立面图
最新回复: 2009-12-9 
发表于2009-12-9
916人浏览
1人跟帖 等级:
来自:室内节点详图
过道立面图 以及详细的材料说明和标注
最新回复: 2009-12-9 
发表于2009-12-3
1503人浏览
1人跟帖 等级:
来自:室内节点详图
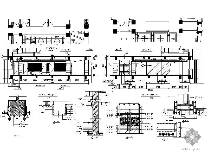
连廊装修详图 主要内容包括:连廊平面布置图、连廊天花布置图、连廊立面图、剖面图等
最新回复: 2009-12-3 
发表于2009-12-3
1392人浏览
1人跟帖 等级:
来自:室内节点详图
门厅立面图 详细的材料说明和标注说明
最新回复: 2009-12-3 
发表于2009-12-3
1007人浏览
1人跟帖 等级:
来自:室内节点详图
休闲厅立面图 以及详细的材料说明和标注说明
最新回复: 2009-12-3 
发表于2009-12-1
931人浏览
1人跟帖 等级:
来自:室内节点详图
过道立面图 还包括材料说明和标注说明
最新回复: 2009-12-1 
发表于2009-11-30
1622人浏览
1人跟帖 等级:
来自:室内节点详图
体操室装修详图 主要内容包括:平面布置图、天花布置图、休操室立面图、剖面图等
最新回复: 2009-11-30 
发表于2009-11-26
1152人浏览
1人跟帖 等级:
来自:室内节点详图
银行过道装修详图 主要内容包括:平面布置图、天花布置图、过道立面图、过道立面图A、剖面图等
最新回复: 2009-11-26 
发表于2009-11-26
1246人浏览
1人跟帖 等级:
来自:室内节点详图
会所大堂立面图
最新回复: 2009-11-26 